Запчасти John Deere 330LC, 370 79 - REAR ENTRY CAB FLOOR WINDOW 1810B Operator Enclosure (Rear Entry)

Схема запчастей John Deere 330LC, 370 - 79 - REAR ENTRY CAB FLOOR WINDOW 1810B Operator Enclosure (Rear Entry)
FIT
1:1
100%

Артикул

Название

Примечание

Количество

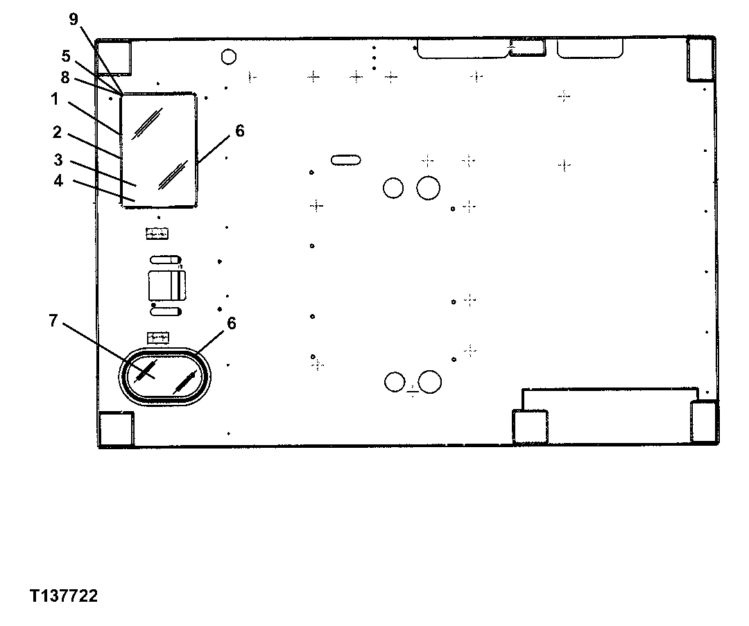
1

FFSB102209

Frame

1шт.

2

Seal

( FFSB102075 NOT AVAILABLE FOR SERVICE) (CUT TO LENGTH FROM FFS B103444 BULK MATERIAL - 1295 MM)

2шт.

3

FFSB108573

Windowpane

1шт.

4

FFSB108572

Windowpane

(PROTECTIVE COATING - GLASS)

1шт.

5

19M7874

Cap Screw

M6 X 30 (SUB FOR FFSB107322)

6шт.

6

FFSB102272

Weatherstrip

1шт.

7

FFSB108571

Windowpane

1шт.

8

24M7054

Washer

6.400 X 12 X 1.600 mm (SUB FOR FFSB107438)

6шт.

9

14M7303

Flange Nut

M6 (SUB FOR FFSB108288)

6шт.

Выбрано товаров: 9