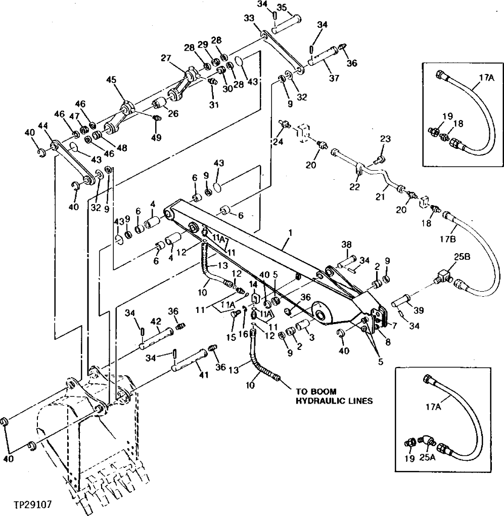
Запчасти John Deere 90D 4 - ARM, ARM HOSES AND LINES 3340 - EXCAVATOR 33

Схема запчастей John Deere 90D - 4 - ARM, ARM HOSES AND LINES 3340 - EXCAVATOR 33
FIT
1:1
100%

Артикул

Название

Примечание

Количество

1

8037384

ARM

(SUB FOR TH108988) (INCLUDES ITEMS 01 THROUGH 08)

1шт.

2

4188796

BUSHING

(SUB FOR TH108930)

2шт.

3

4128972

SPACER

(SUB FOR TH100370)

1шт.

4

4124575

SPACER

(SUB FOR TH100369)

2шт.

5

TH108649

BUSHING

3шт.

6

AT122209

BUSHING

(SUB FOR TH108931)

4шт.

7

4167833

PLATE

(SUB FOR TH108990)

2шт.

8

4167832

PLATE

(SUB FOR TH108991)

2шт.

9

TH100374

SEAL

6шт.

10

TH108992

HYDRAULIC HOSE - FABRICATE

(SUB FOR TH108992) (USE WITH 3 METER ARM)

4шт.

11

4189602

FITTING

(SUB FOR TH108350)

6шт.

11A

4506418

O-RING

17.800 X 2.400 MM (0.701" X 0.094") (SUB FOR TH100061) (SUB FOR U46489)

1шт.

12

T77857

O-RING

12.420 X 1.780 MM (0.489" X 0.070") (SUB FOR TH108323)

6шт.

13

HOSE GUARD

(FURNISH TH101393 CUT TO LENGTH)

4шт.

14

3038876

CYLINDER BLOCK

(SUB FOR TH108993)

2шт.

15

19M8499

CAP SCREW

M10 X 60

4шт.

16

12M7066

LOCK WASHER

10 MM

4шт.

17A

AE42718

HYDRAULIC HOSE

7/16" X 600 MM (23-1/2") X 7/16", (SERIAL NUMBER NOT AVAILABLE) (FOR UNITS BUILT BEFORE MARCH 1990)

1шт.

17B

4227083-S

HYDRAULIC HOSE - FABRICATE

(SUB FOR TH111905) (SERIAL NUMBER NOT AVAILABLE) (FOR UNITS BUILT IN MARCH 1990 OR AFTER)

1шт.

18

X4-4FTX-S

ADAPTER FITTING

(SUB FOR X0103-4-4) (SUB FOR TH100963)

2шт.

X4-4FTX-S

ADAPTER FITTING

(SUB FOR X0103-4-4) (SUB FOR TH100963)

1шт.

19

4078859

ADAPTER FITTING

(SUB FOR TH105956) (DO NOT USE WITH TH111904 PIN)

1шт.

20

4130169

FITTING

(SUB FOR TH101391)

2шт.

21

4208193

TUBE

(SUB FOR TH108995)

1шт.

22

TH101388

CLIP

1шт.

23

21M7288

SCREW

M6 X 10, (SUB FOR TH100547)

1шт.

24

T116334

LUBRICATION FITTING

(SUB FOR TH100075)

1шт.

25A

4154655

ELBOW FITTING

(SUB FOR TH101056)

1шт.

25B

4154656

ELBOW FITTING

(SUB FOR TH101588)

1шт.

26

4065885

SPACER

(SUB FOR TH100376)

1шт.

27

8038215

LINK

(SUB FOR TH108932) (INCLUDES ITEMS 27 THROUGH 31) (RIGHT)

1шт.

28

TH100374

SEAL

3шт.

29

4196557

BUSHING

(SUB FOR TH108934)

1шт.

30

AT122209

BUSHING

(SUB FOR TH108931)

1шт.

31

TH100074

LUBRICATION FITTING

1шт.

32

4075357

WASHER

66 X 120 X 1 MM (2.598" X 4.724" X 0.039") (SUB FOR TH108944)

2шт.

33

4188797

LINK

(SUB FOR TH108937)

1шт.

34

4065689

PIN FASTENER

(SUB FOR TH100625)

6шт.

35

P66990

SHEAR PIN

(SUB FOR TH108943)

1шт.

36

TH100074

LUBRICATION FITTING

5шт.

37

TH108940

PIN

1шт.

38

3044367

PIN

60 X 195 MM (2.362" X 7.677") (SUB FOR TH108939) (SUB FOR AT134035)

1шт.

39

TH111904

PIN FASTENER

(SUB FOR TH108926)

1шт.

40

4065688

RETAINER

(SUB FOR TH100624)

6шт.

41

AT318059

PIN FASTENER

(SUB FOR 3084540) (ALSO ORDER TH100074) (SUB FOR TH108941)

1шт.

42

P68886

PIN

(ALSO ORDER TH100074) (SUB FOR TH108942)

1шт.

43

TH100380

O-RING

4шт.

44

9725289

LINK

(SUB FOR TH108938)

1шт.

45

8038216

LINK

(SUB FOR TH108935) (INCLUDES ITEMS 45 THROUGH 49) (LEFT)

1шт.

46

TH100374

SEAL

3шт.

47

4196557

BUSHING

(SUB FOR TH108934)

1шт.

48

AT122209

BUSHING

(SUB FOR TH108931)

1шт.

49

TH100074

LUBRICATION FITTING

1шт.

Выбрано товаров: 53