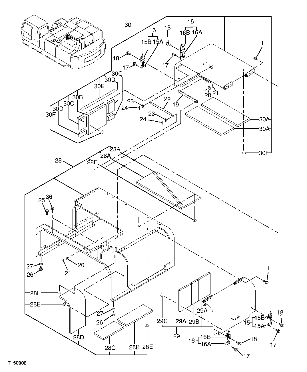
Запчасти John Deere 00C LC 130 - COVER 1910 HOOD OR ENGINE ENCLOSURE

Схема запчастей John Deere 00C LC - 130 - COVER 1910 HOOD OR ENGINE ENCLOSURE
FIT
1:1
100%

Артикул

Название

Примечание

Количество

1

19M7402

Cap Screw

M10 X 25

12шт.

12M7066

Lock Washer

10 mm

12шт.

15

Catch

AT131937 NLA

2шт.

15A

3074568

Catch

SUB FOR AT131654

1шт.

15B

3021131

Anchor

SUB FOR TH102247

1шт.

16

Catch

AT131938 NLA

2шт.

16A

3074568

Catch

SUB FOR AT131654

1шт.

16B

3021131

Anchor

SUB FOR TH102247

1шт.

17

19M7163

Cap Screw

M8 X 25

8шт.

Washer

12M7065 NLA

8шт.

24M7055

Washer

8.400 X 16 X 1.600 mm

8шт.

18

Screw With Washer

J460825 NLA

8шт.

21M7125

Screw

M8 X 25

8шт.

Washer

12M7065 NLA

8шт.

24M7036

Washer

9 X 16 X 1.600 mm

8шт.

19

9756164

Arm

1шт.

20

24M7053

Washer

17 X 30 X 3 mm

5шт.

21

M40461

Spring Locking Pin

2шт.

22

4344047

Cylinder

SUB FOR AT202398

1шт.

23

24M7055

Washer

8.400 X 16 X 1.600 mm

2шт.

24

H132922

Cotter Pin

2шт.

25

19M7330

Cap Screw

M12 X 55 SUB FOR J021255; AL SO ORDER 24M7047 AND 12M7067

8шт.

24M7047

Washer

13 X 24 X 2.500 mm

8шт.

12M7067

Lock Washer

12 mm

8шт.

26

19M7493

Cap Screw

M12 X 40

8шт.

12H301

Lock Washer

1/2"

8шт.

27

4249324

Washer

SUB FOR TH4249324

8шт.

28

6021724

Cover

SUB FOR 6020817

1шт.

28A

4469655

Isolator

2шт.

28B

4471861

Isolator

1шт.

28C

4471855

Isolator

1шт.

28D

4471843

Isolator

1шт.

28E

4156886

Spring Washer

SUB FOR AT121962

22шт.

29

8087281

Cover

1шт.

29A

4469657

Isolator

2шт.

29B

4469660

Isolator

1шт.

29C

4156886

Spring Washer

SUB FOR AT121962

10шт.

30

6020827

Cover

1шт.

30A

4469755

Isolator

2шт.

30B

4469756

Isolator

1шт.

30C

4469757

Isolator

2шт.

30D

4469758

Isolator

2шт.

30E

4469759

Isolator

1шт.

30F

4156886

Spring Washer

SUB FOR AT121962

27шт.

36

19M7872

Cap Screw

M12 X 25

4шт.

12H301

Lock Washer

1/2"

4шт.

Выбрано товаров: 46