Запчасти John Deere 0 4 - CONTROL LEVER 3315 - EXCAVATOR 33

Схема запчастей John Deere 0 - 4 - CONTROL LEVER 3315 - EXCAVATOR 33
FIT
1:1
100%

Артикул

Название

Примечание

Количество

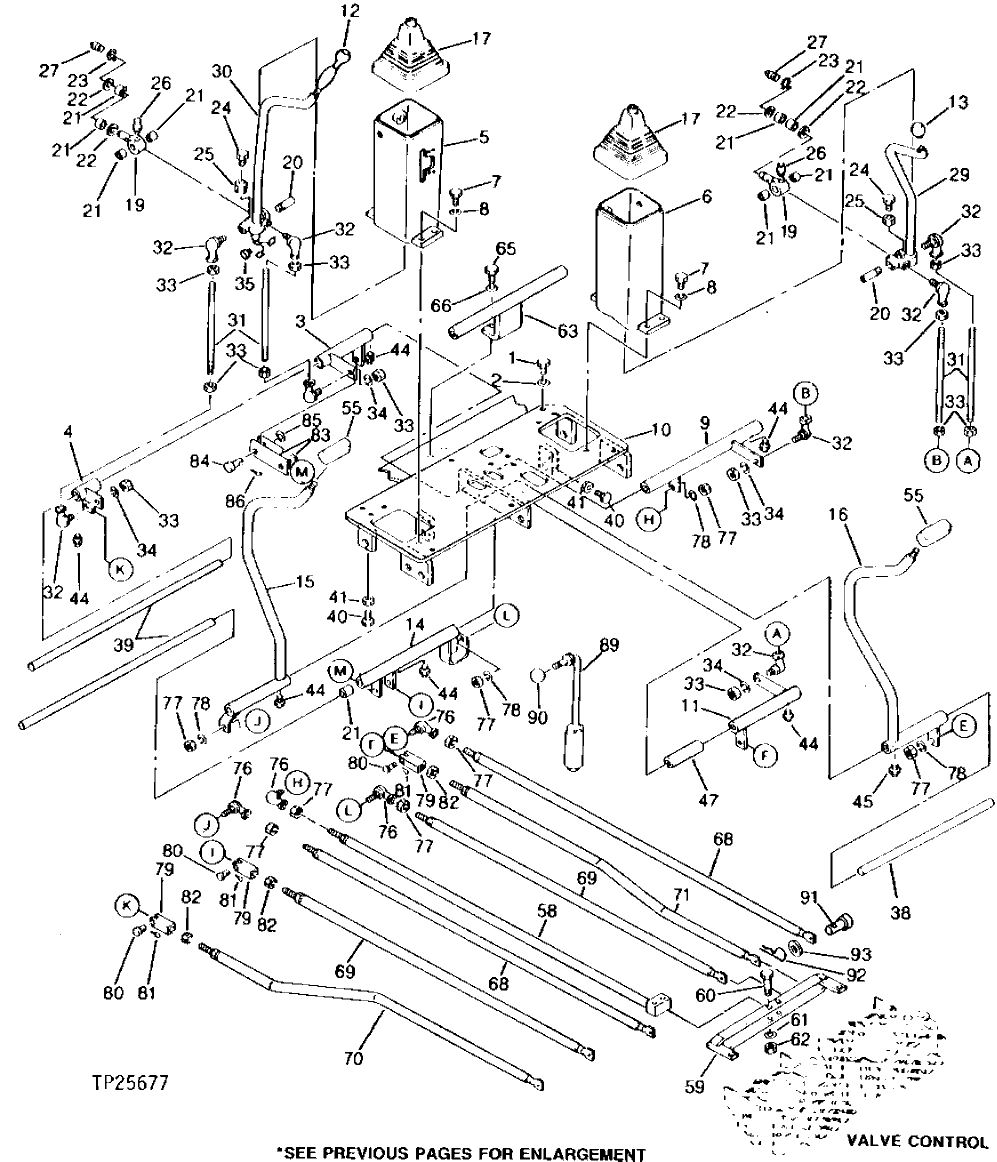
1

19M7402

CAP SCREW

M10 X 25

6шт.

2

12M7066

LOCK WASHER

10 MM, (SUB FOR TH100417)

6шт.

3

9064368

LEVER

(SUB FOR TH106479)

1шт.

9068745

LEVER

(SUB FOR TH106993)

1шт.

4

9064369

LEVER

(SUB FOR TH106271)

1шт.

5

7017159

STAND

(SUB FOR TH106204)

1шт.

6

7011225

STAND

(SUB FOR TH106177)

1шт.

7

19M7402

CAP SCREW

M10 X 25

8шт.

8

12M7066

LOCK WASHER

10 MM, (SUB FOR TH100417)

8шт.

9

9059831

LEVER

(SUB FOR TH106263)

1шт.

9068744

LEVER

(SUB FOR TH106992)

1шт.

10

7015314

BRACKET

(SUB FOR TH106187)

1шт.

11

9059830

LEVER

(SUB FOR TH106262)

1шт.

12

4269020

KNOB

HORN SWITCH, (SUB FOR TH100252) (SUB FOR TH108073)

1шт.

13

4117704

KNOB

(SUB FOR TH100591)

1шт.

14

9064367

LEVER

(SUB FOR TH106269)

1шт.

9068746

LEVER

(SUB FOR TH106994)

1шт.

15

9059829

LEVER

(SUB FOR TH106261)

1шт.

16

9059828

LEVER

(SUB FOR TH106260)

1шт.

17

2016686

BOOT

(SUB FOR TH105873)

2шт.

19

3025206

PIVOT

(SUB FOR TH100247)

2шт.

20

4086444

PIN FASTENER

(SUB FOR TH100249)

2шт.

21

TH100248

NEEDLE BEARING

8шт.

22

24M7053

WASHER

17 X 30 X 3 MM, (SUB FOR TH100520)

4шт.

23

40M7068

SNAP RING

(SUB FOR TH100250)

2шт.

24

19M7376

CAP SCREW

M8 X 22

2шт.

25

14M7273

NUT

M8

2шт.

26

T83686

LABEL

(NOT ILLUSTRATED)

1шт.

27

LEVER

(NOT ILLUSTRATED) (CONTAINS TH106479 LEVER, TH106263 LEVER, TH106269 LEVER AND T83686 DECAL) ( TH105514 - NO LONGER AVAILABLE)

1шт.

Выбрано товаров: 29