Запчасти John Deere 0D 84 - OFFSET CYLINDER 3360 - EXCAVATOR 33

Схема запчастей John Deere 0D - 84 - OFFSET CYLINDER 3360 - EXCAVATOR 33
FIT
1:1
100%

Артикул

Название

Примечание

Количество

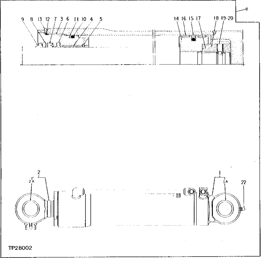
0

4215547

HYDRAULIC CYLINDER

(SUB FOR TH110644)

1шт.

1

4249616

HYDRAULIC CYLINDER BARREL

(SUB FOR TH110348) (SUB FOR TH112082)

1шт.

1A

4265483

BUSHING

55 X 65 X 55 MM (2.165" X 2.559" X 2.165") (SUB FOR TH106868) (SUB FOR AT137407)

1шт.

2

4249617

ROD

(SUB FOR TH110349) (SUB FOR TH112083)

1шт.

2A

4265483

BUSHING

55 X 65 X 55 MM (2.165" X 2.559" X 2.165") (SUB FOR TH106868) (SUB FOR AT137407)

1шт.

3

0257803

CYLINDER HEAD

(SUB FOR TH106865)

1шт.

4

988670

BUSHING

60 X 65 X 40 MM (2.362" X 2.559" X 1.575") (SUB FOR TH106301)

1шт.

5

0225704

SNAP RING

(SUB FOR TH105772)

1шт.

6

AT264380

RING

(K) (SUB FOR TH105780)

1шт.

7

AT264378

RING

(K) (SUB FOR TH105778)

1шт.

8

AT264379

BACK-UP RING

(K) (SUB FOR TH105779)

1шт.

9

AT264377

RING

(K) (SUB FOR TH105777)

1шт.

10

TH100156

O-RING

(K) 99.600 X 5.700 MM (3.921" X 0.224") (SUB FOR TH106869)

1шт.

11

4513525

BACK-UP RING

(K) (SUB FOR TH106870)

1шт.

12

AT264320

O-RING

(K) 109.400 X 3.100 MM (4.307" X 0.122") (SUB FOR TH106871, T110448)

1шт.

13

0174517

LOCK WASHER

(K) 117 X 135 X 1.600 MM (4.606" X 5.315" X 0.063") (SUB FOR TH106866)

1шт.

14

0334803

PISTON

(SUB FOR TH110350)

1шт.

15

AT264386

RING

(K) (SUB FOR TH106872, 0240915)

1шт.

16

0654711

RING

(SUB FOR TH106873, 0240916)

2шт.

17

TH110253

SHIM

0.300 MM (0.012") (SUB FOR 0326007)

1шт.

18

0326006

NUT

(SUB FOR TH110252)

1шт.

19

22M7139

SET SCREW

M10 X 10, (SUB FOR TH109380)

1шт.

20

400R

BALL

6.350 MM (1/4") (SUB FOR TH109381)

1шт.

22

JD7781

LUBRICATION FITTING

(SUB FOR TH105707)

2шт.

Выбрано товаров: 24