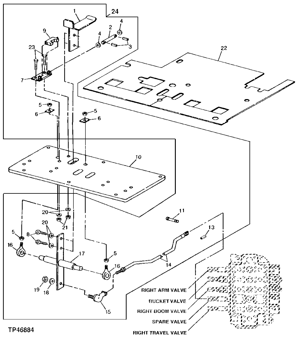
Запчасти John Deere 90 28 - AUXILIARY VALVE CONTROL PEDAL AND LINKAGE 3315 - EXCAVATOR 33

Схема запчастей John Deere 90 - 28 - AUXILIARY VALVE CONTROL PEDAL AND LINKAGE 3315 - EXCAVATOR 33
FIT
1:1
100%

Артикул

Название

Примечание

Количество

1

9721167

PEDAL

(SUB FOR TH107009)

1шт.

2

4153761

PIN

(SUB FOR TH107011)

1шт.

3

11M7099

COTTER PIN

(SUB FOR TH102069)

2шт.

4

24M7055

WASHER

8.400 X 16 X 1.600 MM, (SUB FOR TH100280)

2шт.

5

14M7276

NUT

(SUB FOR TH101725)

4шт.

6

STRAP

( E53005 NO LONGER AVAILABLE FOR SERVICE)

2шт.

7

9727017

BRACKET

(SUB FOR TH107012)

1шт.

8

19M8761

SCREW

M10 X 22, (SUB FOR TH100456)

2шт.

9

4153762

PLATE

(SUB FOR TH107010)

1шт.

10

BRACKET

( TH102039 NO LONGER AVAILABLE)

1шт.

11

4131437

PIN FASTENER

(SUB FOR TH102011) (SUB FOR P54311)

1шт.

13

11M7082

COTTER PIN

2.500 X 25 MM, (SUB FOR TH100264) (SUB FOR 11M7081)

1шт.

14

9727014

ROD

(SUB FOR TH107016)

1шт.

15

4056020

BALL JOINT

(SUB FOR TH100311)

1шт.

16

4086698

TIE ROD END

(SUB FOR TH103837)

2шт.

17

9727018

LEVER

(SUB FOR TH107017)

1шт.

18

12H301

LOCK WASHER

1/2"

1шт.

19

M501210

NUT

(SUB FOR TH100312)

1шт.

20

12M7066

LOCK WASHER

10 MM, (SUB FOR TH100417)

4шт.

21

14M7274

NUT

M10

2шт.

22

MAT

(NOT AVAILABLE FOR SERVICE)

1шт.

23

19M7402

CAP SCREW

2шт.

24

AT107361

KIT

WHOLEGOODS (AUXILIARY VALVE)

1шт.

Выбрано товаров: 23