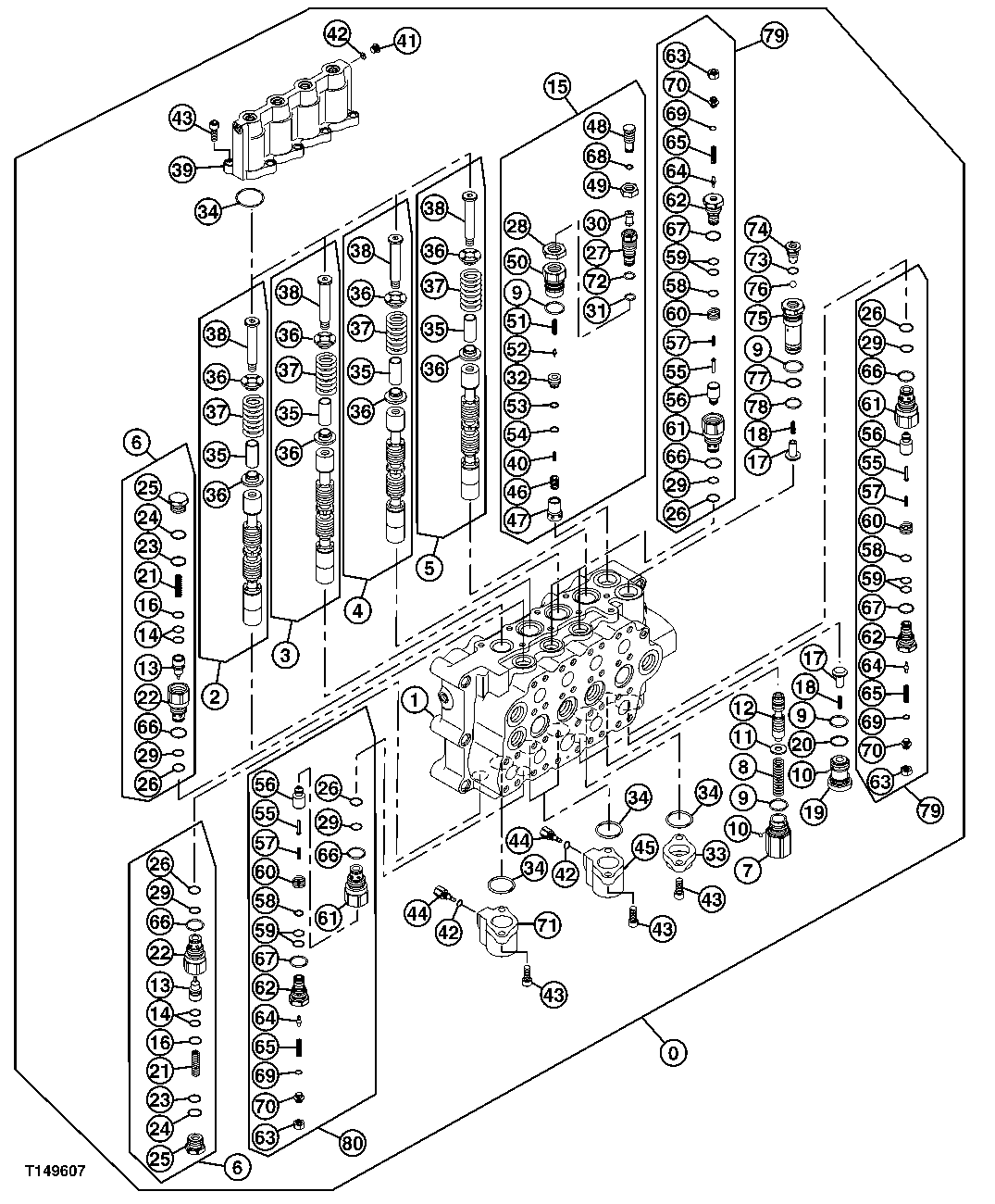
Запчасти John Deere 00C 268 - CONTROL VALVE (4 SPOOL) 3362 CONTROL AND LOAD HOLDING VALVES

Схема запчастей John Deere 00C - 268 - CONTROL VALVE (4 SPOOL) 3362 CONTROL AND LOAD HOLDING VALVES
FIT
1:1
100%

Артикул

Название

Примечание

Количество

0

4448443

Hyd Actuated Control Valve

Contains All Items On This Page - Additi onal Components Listed On Separate Pages

1шт.

1

Housing

1шт.

2

Plunger

1шт.

3

Plunger

1шт.

4

Plunger

1шт.

5

Plunger

1шт.

6

Valve

AT202027 NLA

2шт.

7

0622817

Cap

SUB FOR AT202001

1шт.

8

0810405

Spring

SUB FOR TH0810405

1шт.

9

4088425

O-Ring

SUB FOR AT202080

4шт.

10

0189803

Ball

SUB FOR AT203704

2шт.

11

0622816

Spacer

SUB FOR AT202000

1шт.

12

Spool

SUB FOR TH0810406, 0810406 NSEP

1шт.

13

0809734

Poppet

SUB FOR TH0809734

2шт.

14

0809735

Ring

SUB FOR TH0809735

4шт.

15

4473772

Pressure Relief Valve

1шт.

16

0809736

O-Ring

SUB FOR TH0809736

2шт.

17

Check Valve

AT202013 NLA

2шт.

18

0622827

Spring

SUB FOR AT202011

2шт.

19

0622825

Cap

SUB FOR AT202009

1шт.

20

0223104

Back-Up Ring

SUB FOR AT217055

1шт.

21

0809737

Spring

SUB FOR TH0809737

2шт.

22

0809738

Sleeve

SUB FOR TH0809738

2шт.

23

0809739

O-Ring

SUB FOR TH0809739

2шт.

24

4144045

O-Ring

SUB FOR 0212312

2шт.

25

0809740

Cap

SUB FOR TH0809740

2шт.

26

4355080

O-Ring

SUB FOR AT202086, SUB FOR 41530 99, OR 0818011 THIS APPLICATION

6шт.

27

0809708

Sleeve

SUB FOR TH0809708

1шт.

28

0809709

Nut

SUB FOR TH0809709

1шт.

29

4027959

Back-Up Ring

SUB FOR TH100771

6шт.

30

0809710

Orifice

SUB FOR TH0809710

1шт.

31

0809711

O-Ring

SUB FOR TH0809711

1шт.

32

0809712

Valve Seat

SUB FOR TH0809712

1шт.

33

0622803

Cover

SUB FOR AT201987

1шт.

34

4073426

O-Ring

SUB FOR AT217049

8шт.

35

0622805

Sleeve

SUB FOR AT201989

4шт.

36

0622806

Guide

(SUB FOR AT201990

8шт.

37

0622807

Spring

SUB FOR AT201991

4шт.

38

0622808

Cap

SUB FOR AT201992

4шт.

39

0809705

Cover

SUB FOR TH0809705

1шт.

40

0809713

Spring

SUB FOR TH0809713

1шт.

41

0622810

Cap

SUB FOR AT201994

1шт.

42

M800650

Packing

4шт.

43

19M8169

Screw

M12 X 30 SUB FOR 19M8127

16шт.

44

0622875

Plug

SUB FOR AT172702

3шт.

45

0818005

Cover

SUB FOR TH0818005

2шт.

46

0809714

Poppet

SUB FOR TH0809714

1шт.

47

0809715

Sleeve

SUB FOR TH0809715

1шт.

48

0809716

Screw

SUB FOR TH0809716

1шт.

49

0809717

Nut

SUB FOR TH0809717

1шт.

50

0809718

Cap

SUB FOR TH0809718

1шт.

51

0135206

Spring

SUB FOR TH0135206

1шт.

52

0809719

Poppet

SUB FOR TH0809719

1шт.

53

4040813

Back-Up Ring

SUB FOR TH110449

1шт.

54

0809720

O-Ring

SUB FOR TH0809720

1шт.

55

0809729

Piston

SUB FOR TH0809729

4шт.

56

0809728

Poppet

SUB FOR TH0809728

4шт.

57

0809727

Spring

SUB FOR TH0809727

4шт.

58

0809726

O-Ring

SUB FOR TH0809726

4шт.

59

0809725

Ring

SUB FOR TH0809725

8шт.

Выбрано товаров: 60