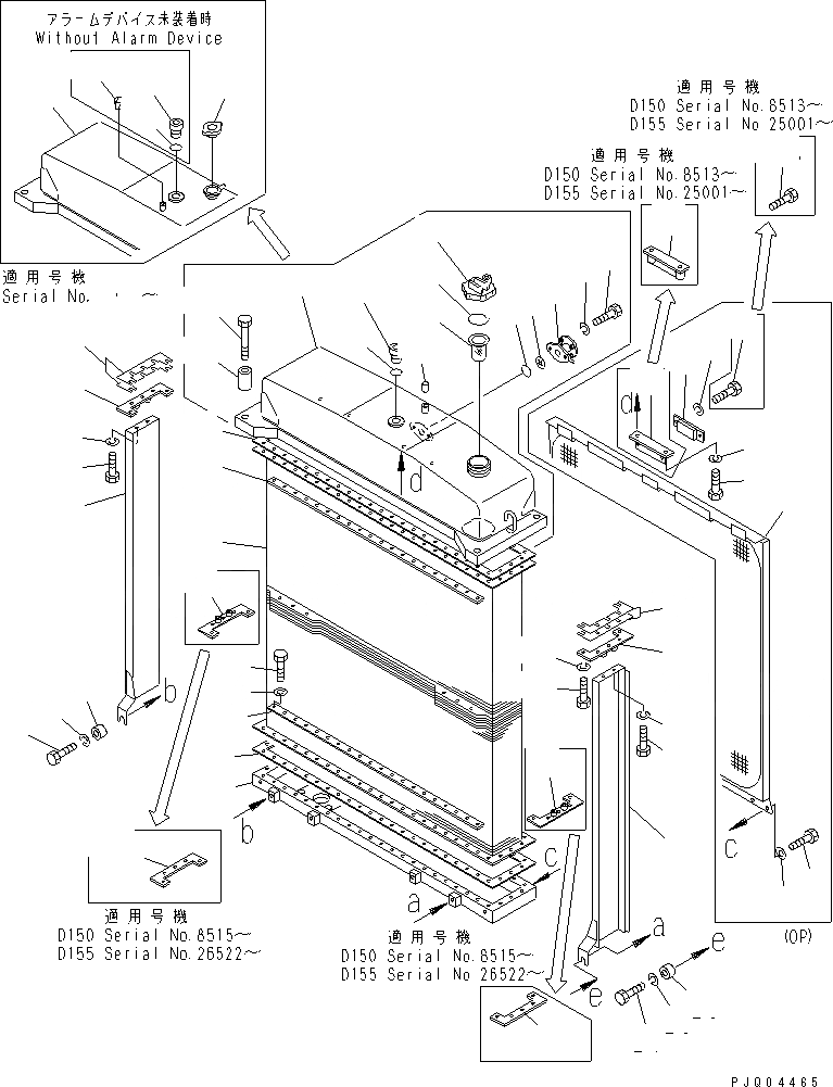
Запчасти Komatsu D155A-1 РАДИАТОР(№7-) КОМПОНЕНТЫ ДВИГАТЕЛЯ И ЭЛЕКТРИКА

Схема запчастей Komatsu D155A-1 - РАДИАТОР(№7-) КОМПОНЕНТЫ ДВИГАТЕЛЯ И ЭЛЕКТРИКА
1
1
2
3
4
5
6
7
8
9
10
10
11
11
12
12
13
14
15
15
16
16
17
17
18
18
18
18
18A
18A
19
19
20
20
21
21
22
22
23
23
24
24
25
25
26
26
27
28
29
30
31
32
32
33
34
34
34A
35
35
36
FIT
1:1
100%

Артикул

Название

Примечание

Количество

|$0

175-03-00296

RADIATOR ASS'Y

SN: 31271-UP

1шт.

|$1

0

RADIATOR ASS'Y

SN: .-31270

1шт.

|$2

0

RADIATOR ASS'Y

SN: 28854-.

1шт.

|$3

0

RADIATOR ASS'Y

SN: 26522-28853

1шт.

|$4

0

RADIATOR ASS'Y

SN: 21376-26521

1шт.

|$5

175-03-00302

UPPER TANK ASS'Y

SN: .-UP

1шт.

|$6

0

UPPER TANK ASS'Y

SN: 21376-.

1шт.

1

175-03-32921

TANK,UPPER

SN: .-UP

1шт.

1

0

TANK,UPPER

SN: 21376-.

1шт.

2

154-03-11682

VALVE

SN: 15850-.

1шт.

3

07000-43045

O-RING

SN: 21376-.

1шт.

4

175-03-32570

SCREEN

SN: 15850-.

1шт.

5

01010-31025

BOLT

SN: 5508-.

2шт.

6

01602-01030

WASHER

SN: 5508-.

2шт.

7

07053-10000

CAP

SN: 5508-UP

1шт.

7

07093-20000

CAP,(FOR VANDALISM PROTECTION)

SN: 5508-UP

1шт.

8

07057-03271

RING

SN: 5508-UP

1шт.

9

07056-00048

STRAINER

SN: 5508-UP

1шт.

10

07040-13618

PLUG

SN: 21376-UP

1шт.

11

07002-43634

O-RING

SN: .-UP

1шт.

11

0

O-RING

SN: 21376-.

1шт.

12

07049-01012

PLUG

SN: 21376-UP

1шт.

13

175-03-32262

CORE

SN: 28854-UP

1шт.

13

0

CORE

SN: 21376-28853

1шт.

14

175-03-31133

TANK

SN: 21376-UP

1шт.

15

175-03-32930

PLATE,L.H.

SN: 21376-UP

1шт.

15

175-03-32940

PLATE,R.H.

SN: 21376-UP

1шт.

16

175-03-31563

GASKET

SN: 31271-UP

2шт.

16

0

PACKING

SN: 21376-31270

2шт.

17

175-03-31181

PLATE

SN: 21376-UP

4шт.

18

175-03-32990

PLATE

SN: 26522-UP

2шт.

18

175-03-32990

PLATE

SN: 21376-26521

4шт.

18A

175-03-32660

PLATE

SN: 26522-UP

2шт.

19

01010-31030

BOLT

SN: 21376-UP

100шт.

20

01602-01030

WASHER,SPRING

SN: 21376-UP

100шт.

21

01010-31020

BOLT

SN: 21376-UP

4шт.

22

01602-01030

WASHER,SPRING

SN: 21376-UP

4шт.

23

195-03-22160

SEAT

SN: 21376-UP

2шт.

24

01010-31030

BOLT

SN: 21376-UP

2шт.

25

01602-01030

WASHER,SPRING

SN: 21376-UP

2шт.

26

195-03-11570

SHIM, 1.0MM

SN: 21376-UP

8шт.

27

175-03-32650

COLLAR

SN: 21376-UP

4шт.

28

01011-31835

BOLT

SN: 21376-UP

4шт.

29

175-03-32612

GRID

SN: 21376-UP

1шт.

30

01010-31025

BOLT

SN: 21376-UP

7шт.

31

01643-31032

WASHER

SN: 21376-UP

7шт.

32

198-03-22390

BRACKET

SN: 25001-UP

3шт.

32

0

BRACKET

SN: 21376-25000

3шт.

33

198-03-22410

PLATE

SN: 21376-UP

3шт.

34

01010-31020

BOLT

SN: 25001-UP

6шт.

34

01010-31020

BOLT

SN: 21376-25000

12шт.

34A

01010-31035

BOLT

SN: 25001-UP

6шт.

35

01602-01030

WASHER,SPRING

SN: 21376-UP

12шт.

36

125-03-21210

CAP

SN: .-UP

1шт.

Выбрано товаров: 54