Запчасти Komatsu D155A-2 КРЫЛО (/) ЧАСТИ КОРПУСА

Схема запчастей Komatsu D155A-2 - КРЫЛО (/) ЧАСТИ КОРПУСА
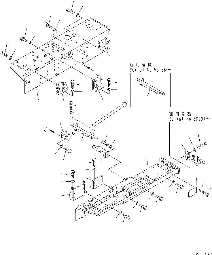
1
2
3
3
4
4
5
5
5
5
6
7
8
8
9
9
10
10
10
10
11
12
13
13
14
14
15
15
15
15
16
17
18
18
19
19
20
20
21
22
23
23
24
25
26
27
28
FIT
1:1
100%

Артикул

Название

Примечание

Количество

1

175-54-46311

FENDER,L.H.

SN: 50901-UP

1шт.

1

175-54-46310

FENDER,L.H.

SN: 50001-50900

1шт.

2

175-54-46321

FENDER,R.H.

SN: 50901-UP

1шт.

2

175-54-46320

FENDER,R.H.

SN: 50001-50900

1шт.

3

01010-52450

BOLT

SN: 50001-UP

8шт.

4

01010-82465

BOLT

SN: 50001-UP

8шт.

5

01643-32460

WASHER

SN: 50001-UP

16шт.

6

175-54-46360

BRACKET

SN: 50001-UP

1шт.

7

175-54-46370

BRACKET

SN: 50001-UP

1шт.

8

01010-51645

BOLT

SN: 50001-UP

11шт.

9

01010-51655

BOLT

SN: 50001-UP

8шт.

10

01643-31645

WASHER

SN: 50001-UP

19шт.

11

175-54-46380

BRACKET

SN: 50001-UP

1шт.

12

175-54-34110

BRACKET

SN: 50001-UP

1шт.

13

01010-51645

BOLT

SN: 50001-UP

8шт.

14

01010-51655

BOLT

SN: 50001-UP

8шт.

15

01643-31645

WASHER

SN: 50001-UP

16шт.

16

175-54-33892

BRACKET

SN: 50001-UP

1шт.

17

175-54-33981

BRACKET

SN: 50001-UP

1шт.

18

01010-51635

BOLT

SN: 50001-UP

5шт.

19

01643-31645

WASHER

SN: 50001-UP

5шт.

20

175-54-46341

SUPPORT

SN: 53156-UP

1шт.

20

175-54-46340

SUPPORT

SN: 50001-53155

1шт.

21

01010-51635

BOLT

SN: 50001-UP

4шт.

22

01643-31645

WASHER

SN: 50001-UP

4шт.

23

175-54-22420

COVER

SN: 50001-UP

2шт.

24

01010-51235

BOLT

SN: 50001-UP

8шт.

25

01643-31232

WASHER

SN: 50001-UP

8шт.

26

175-54-48150

STEP

SN: 50901-UP

1шт.

27

01010-51875

BOLT

SN: 50901-UP

4шт.

28

01643-31845

WASHER

SN: 50901-UP

4шт.

Выбрано товаров: 31