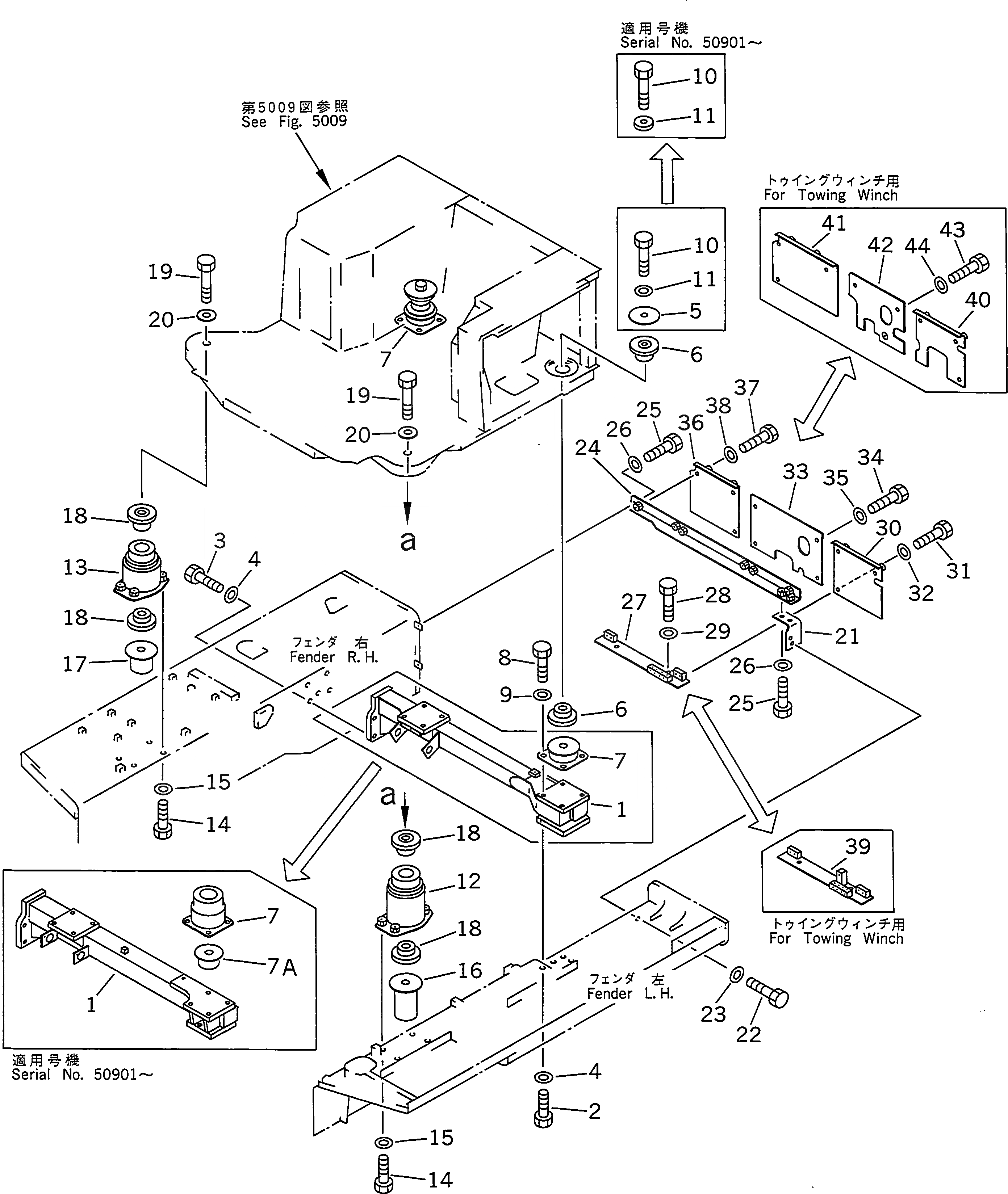
Запчасти Komatsu D155A-2 СУППОРТ И ЗАДН. КРЫШКА ЧАСТИ КОРПУСА

Схема запчастей Komatsu D155A-2 - СУППОРТ И ЗАДН. КРЫШКА ЧАСТИ КОРПУСА
FIT
1:1
100%

Артикул

Название

Примечание

Количество

1

175-54-46331

SUPPORT

SN: 50901-UP

1шт.

1

175-54-46330

SUPPORT

SN: 50001-50900

1шт.

2

01010-52060

BOLT

SN: 50001-UP

7шт.

3

01010-52045

BOLT

SN: 50001-UP

5шт.

4

01643-32060

WASHER

SN: 50001-UP

12шт.

5

15A-54-15150

PLATE

SN: 50001-UP

2шт.

6

15A-54-15110

RUBBER

SN: 50001-UP

4шт.

7

175-54-46741

BRACKET

SN: 50901-UP

2шт.

7

175-54-46740

BRACKET

SN: 50001-50900

2шт.

7A

175-54-46860

BRACKET

SN: 50901-UP

2шт.

8

01010-51635

BOLT

SN: 50901-UP

8шт.

8

01010-51640

BOLT

SN: 50001-50900

8шт.

9

01643-31645

WASHER

SN: 50001-UP

8шт.

10

01011-52440

BOLT

SN: 50001-UP

2шт.

11

175-03-41440

PLATE

SN: 52195-UP

2шт.

11

21T-01-11220

COLLAR

SN: 50901-52158

2шт.

11

01643-32460

WASHER

SN: 50001-50900

2шт.

12

175-54-46841

BRACKET,L.H.

SN: 50901-UP

1шт.

12

175-54-46840

BRACKET,L.H.

SN: 50001-50900

1шт.

13

175-54-46851

BRACKET,R.H.

SN: 50901-UP

1шт.

13

175-54-46850

BRACKET,R.H.

SN: 50001-50900

1шт.

14

01010-51645

BOLT

SN: 50001-UP

8шт.

15

01643-31645

WASHER

SN: 50001-UP

8шт.

16

175-54-46721

BRACKET,L.H.

SN: 50901-UP

1шт.

16

175-54-46720

BRACKET,L.H.

SN: 50001-50900

1шт.

17

175-54-46731

BRACKET,R.H.

SN: 50901-UP

1шт.

17

175-54-46730

BRACKET,R.H.

SN: 50001-50900

1шт.

18

15A-54-15110

RUBBER

SN: 50001-UP

4шт.

19

01011-52440

BOLT

SN: 50001-UP

2шт.

20

175-03-41440

PLATE

SN: 52159-UP

2шт.

20

21T-01-11220

COLLAR

SN: 50001-52158

2шт.

21

175-54-22273

BRACKET

SN: 50001-UP

1шт.

22

01010-51235

BOLT

SN: 50001-UP

2шт.

23

01643-31232

WASHER

SN: 50001-UP

2шт.

24

175-54-22196

STAY

SN: 50001-UP

1шт.

25

01010-51230

BOLT

SN: 50001-UP

3шт.

26

01643-31232

WASHER

SN: 50001-UP

3шт.

27

175-54-46970

BRACKET

SN: 50001-UP

1шт.

28

01010-51225

BOLT

SN: 50001-UP

2шт.

29

01643-31232

WASHER

SN: 50001-UP

2шт.

30

175-54-46660

COVER

SN: 50001-UP

1шт.

31

01010-51225

BOLT

SN: 50001-UP

3шт.

32

01643-31232

WASHER

SN: 50001-UP

3шт.

33

175-54-46681

COVER

SN: 50004-UP

1шт.

33

175-54-46680

COVER

SN: 50001-50003

1шт.

34

01010-51225

BOLT

SN: 50001-UP

4шт.

35

01643-31232

WASHER

SN: 50001-UP

4шт.

36

175-54-46670

COVER

SN: 50001-UP

1шт.

37

01010-51225

BOLT

SN: 50001-UP

3шт.

38

01643-31232

WASHER

SN: 50001-UP

3шт.

39

175-916-8710

BRACKET,(FOR TOWING WINCH)

SN: 50001-UP

1шт.

40

175-916-8720

COVER,(FOR TOWING WINCH)

SN: 50001-UP

1шт.

41

175-916-8730

COVER,(FOR TOWING WINCH)

SN: 50001-UP

1шт.

42

175-916-8740

COVER,(FOR TOWING WINCH)

SN: 50001-UP

1шт.

43

01010-51225

BOLT,(FOR TOWING WINCH)

SN: 50001-UP

9шт.

44

01643-31232

WASHER,(FOR TOWING WINCH)

SN: 50001-UP

9шт.

Выбрано товаров: 56