Запчасти Komatsu D155A-2 КАПОТ И DASHBOAD ЧАСТИ КОРПУСА

Схема запчастей Komatsu D155A-2 - КАПОТ И DASHBOAD ЧАСТИ КОРПУСА
FIT
1:1
100%

Артикул

Название

Примечание

Количество

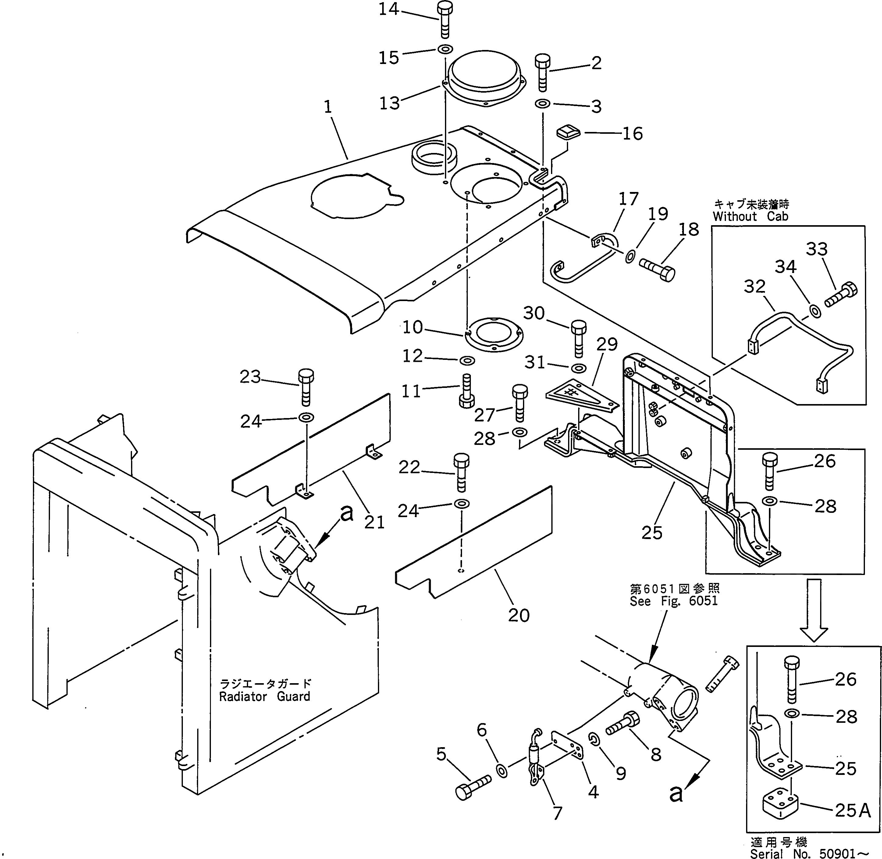
1

175-54-21167

HOOD

SN: 50001-UP

1шт.

2

01010-51225

BOLT

SN: 50001-UP

5шт.

3

175-54-34170

WASHER

SN: 50001-UP

5шт.

4

175-54-21811

PLATE

SN: 50001-UP

2шт.

5

01010-51230

BOLT

SN: 50001-UP

4шт.

6

01643-31232

WASHER

SN: 50001-UP

4шт.

7

175-54-21361

CATCH ASS'Y

SN: 50001-UP

2шт.

8

01019-51025

BOLT

SN: 50001-UP

6шт.

9

01602-21030

WASHER,SPRING

SN: 50001-UP

6шт.

10

175-54-21682

COVER

SN: 50001-UP

1шт.

11

01010-50820

BOLT

SN: 50001-UP

4шт.

12

01643-30823

WASHER

SN: 50001-UP

4шт.

13

175-862-3530

COVER

SN: 50001-UP

1шт.

14

01010-51020

BOLT

SN: 50001-UP

4шт.

15

01643-31032

WASHER

SN: 50001-UP

4шт.

16

175-54-34281

CAP

SN: 50123-UP

1шт.

|16

175-54-34280

CAP

SN: 50001-50122

1шт.

17

09420-01903

HANDLE

SN: 50001-UP

2шт.

18

01010-51235

BOLT

SN: 50001-UP

4шт.

19

01643-31232

WASHER

SN: 50001-UP

4шт.

20

175-54-46390

COVER,L.H. (WITHOUT SIDE COVER)

SN: 50001-UP

1шт.

|20

175-54-49210

COVER,L.H. (FOR SLAG HANDLING)

SN: 50001-UP

1шт.

21

175-54-46410

COVER,R.H. (WITHOUT SIDE COVER)

SN: 50001-UP

1шт.

|21

175-54-49220

COVER,R.H. (FOR SLAG HANDLING)

SN: 50001-UP

1шт.

22

01010-51225

BOLT,(WITHOUT SIDE COVER)

SN: 50001-UP

2шт.

23

01010-51250

BOLT,(WITHOUT SIDE COVER)

SN: 50001-UP

2шт.

24

175-54-21340

WASHER,(WITHOUT SIDE COVER)

SN: 50001-UP

4шт.

25

175-54-46351

BRACKET

SN: 50901-UP

1шт.

|25

175-54-46350

BRACKET

SN: 50001-50900

1шт.

25A

175-54-47320

PLATE

SN: 50901-UP

1шт.

26

01011-51615

BOLT

SN: 50901-UP

4шт.

|26

01010-51645

BOLT

SN: 50001-50900

4шт.

27

01010-51650

BOLT

SN: 50001-UP

4шт.

28

01643-31645

WASHER

SN: 50001-UP

8шт.

29

175-54-46650

COVER,(WITHOUT SIDE COVER)

SN: 50001-UP

1шт.

30

01010-51225

BOLT,(WITHOUT SIDE COVER)

SN: 50001-UP

2шт.

31

01643-31232

WASHER,(WITHOUT SIDE COVER)

SN: 50001-UP

2шт.

32

154-54-45240

HANDLE,(WITHOUT CAB)

SN: 50001-UP

1шт.

33

01010-51240

BOLT,(WITHOUT CAB)

SN: 50001-UP

4шт.

34

01643-31232

WASHER,(WITHOUT CAB)

SN: 50001-UP

4шт.

Выбрано товаров: 40