Запчасти Komatsu D155A-2A КАБИНА ЧАСТИ КОРПУСА SWEEPER (JUNGLE СПЕЦ-Я.) (/)(№7-79) РАЗНОЕ

Схема запчастей Komatsu D155A-2A - КАБИНА ЧАСТИ КОРПУСА SWEEPER (JUNGLE СПЕЦ-Я.) (/)(№7-79) РАЗНОЕ
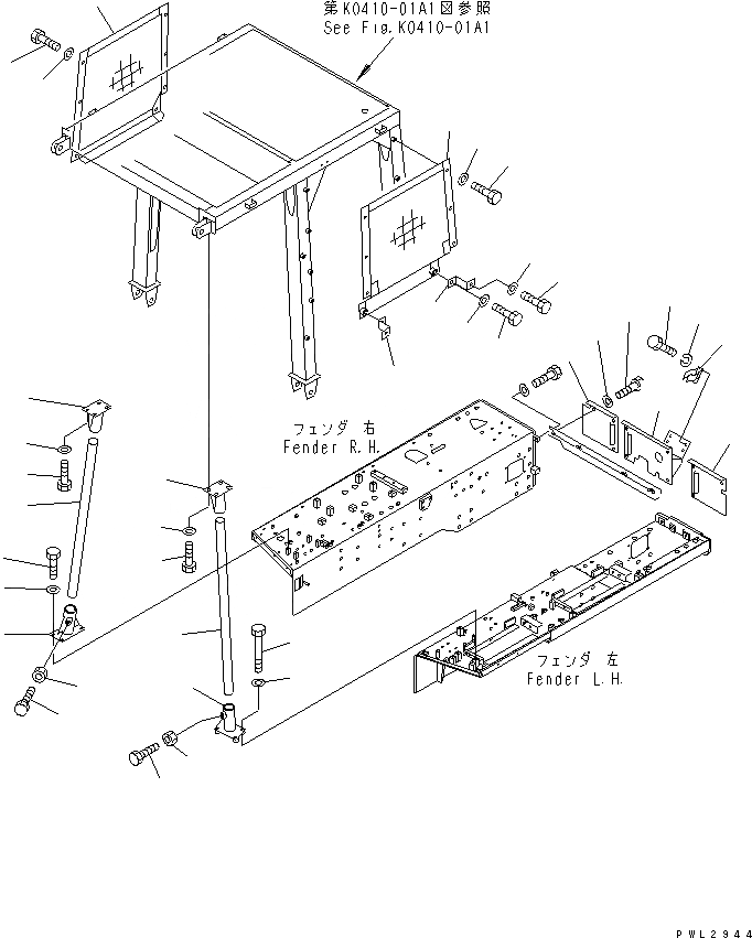
1
2
2
3
3
4
5
6
7
7
8
9
10
11
12
13
14
15
15
15
16
16
16
16
17
17
18
18
19
19
20
21
22
23
24
25
26
27
FIT
1:1
100%

Артикул

Название

Примечание

Количество

1

175-902-8410

NET,L.H.

SN: 57001-@

1шт.

2

01010-81635

BOLT

SN: 57001-@

8шт.

3

01643-31645

WASHER

SN: 57001-@

8шт.

4

175-902-8420

NET,R.H.

SN: 57001-@

1шт.

5

01010-81635

BOLT

SN: 57001-@

7шт.

6

01643-31645

WASHER

SN: 57001-@

7шт.

7

175-902-8430

BRACKET

SN: 57001-@

2шт.

8

01010-81635

BOLT

SN: 57001-@

2шт.

9

01643-31645

WASHER

SN: 57001-@

2шт.

10

175-902-8510

BRACKET

SN: 57001-57119

1шт.

11

175-902-8520

BRACKET

SN: 57001-@

1шт.

12

175-902-8530

BRACKET

SN: 57001-57119

1шт.

13

175-902-8540

BRACKET

SN: 57001-@

1шт.

14

01010-81275

BOLT

SN: 57001-57119

4шт.

15

01010-81230

BOLT

SN: 57001-57119

12шт.

16

01643-31232

WASHER

SN: 57001-57119

16шт.

17

154-91-21310

POLE

SN: 57001-@

2шт.

18

01016-51450

BOLT

SN: 57001-@

2шт.

19

01580-11411

NUT

SN: 57001-@

2шт.

20

175-54-25831

COVER

SN: 57001-57119

1шт.

21

175-54-25822

COVER

SN: 57001-57119

1шт.

22

175-54-25841

COVER

SN: 57001-57119

1шт.

23

01010-51225

BOLT

SN: 57001-57119

10шт.

24

01643-31232

WASHER

SN: 57001-57119

10шт.

25

198-54-19150

SPRING

SN: 57001-57119

2шт.

26

01010-50616

BOLT

SN: 57001-57119

4шт.

27

01602-20619

WASHER

SN: 57001-57119

4шт.

Выбрано товаров: 27