Запчасти Komatsu D155A-2A КЛАПАН ТРАНСМИССИИ СИЛОВАЯ ПЕРЕДАЧА И КОНЕЧНАЯ ПЕРЕДАЧА

Схема запчастей Komatsu D155A-2A - КЛАПАН ТРАНСМИССИИ СИЛОВАЯ ПЕРЕДАЧА И КОНЕЧНАЯ ПЕРЕДАЧА
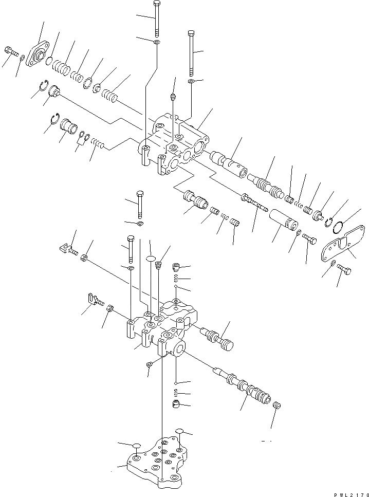
1
2
3
4
5
5
6
7
8
9
10
11
12
13
14
15
16
17
18
19
20
21
22
23
24
25
26
27
28
29
30
31
32
33
34
35
36
37
38
39
40
41
42
43
44
45
46
47
48
49
50
51
52
53
54
55
56
57
58
59
60
61
62
62
FIT
1:1
100%

Артикул

Название

Примечание

Количество

|1

175-15-41013

TRANSMISSION ASS'Y

SN: 57001-UP

1шт.

|$$2

THIS ASSEMBLY CONSISTS OF ALL PARTS SHOWN IN FIGS.F2320-51A0 TO F2320-57A0.

-1шт.

|1

15A-15-15003

VALVE ASS'Y

SN: 57001-UP

1шт.

1

175-15-45110

SEAT,VALVE

SN: 57001-UP

1шт.

2

07000-73022

O-RING (K5)

SN: 57001-UP

7шт.

3

01011-81035

BOLT

SN: 57001-UP

3шт.

4

01010-81075

BOLT

SN: 57001-UP

1шт.

5

01643-31032

WASHER

SN: 57001-UP

4шт.

6

07000-73025

O-RING (K5)

SN: 57001-UP

3шт.

7

175-15-45213

BODY,VALVE

SN: 57001-UP

1шт.

8

15A-15-16450

PLUG

SN: 57001-UP

1шт.

9

07043-00415

PLUG

SN: 57001-UP

1шт.

10

175-15-45220

SPOOL

SN: 57001-UP

1шт.

11

09363-01053

YOKE

SN: 57001-UP

1шт.

12

01580-11008

NUT

SN: 57001-UP

1шт.

13

175-15-45260

DETENT

SN: 57001-UP

1шт.

14

195-15-15680

SPRING,(L=15.5)

SN: 57001-UP

1шт.

15

04260-00952

BALL

SN: 57001-UP

1шт.

16

195-15-15671

DETENT

SN: 57001-UP

1шт.

17

195-15-15680

SPRING,(L=15.5)

SN: 57001-UP

1шт.

18

04260-00952

BALL

SN: 57001-UP

1шт.

19

07000-73022

O-RING (K5)

SN: 57001-UP

2шт.

20

154-15-45230

SPOOL

SN: 57001-UP

1шт.

21

09363-01053

YOKE

SN: 57001-UP

1шт.

22

01580-11008

NUT

SN: 57001-UP

1шт.

23

144-15-25210

PLUG

SN: 57001-UP

1шт.

24

155-15-15410

BODY,VALVE

SN: 57001-UP

1шт.

25

07042-80108

PLUG

SN: 57001-UP

1шт.

26

155-15-15850

COVER

SN: 57001-UP

1шт.

27

07000-73040

O-RING (K5)

SN: 57001-UP

1шт.

28

01010-81025

BOLT

SN: 57001-UP

4шт.

29

01643-31032

WASHER

SN: 57001-UP

4шт.

30

145-14-43382

VALVE,MODULATING

SN: 57001-UP

1шт.

31

130-09-15170

RING,SNAP

SN: 57001-UP

1шт.

32

145-14-23180

STOPPER

SN: 57001-UP

1шт.

33

175-15-15550

VALVE,MODULATING

SN: 57001-UP

1шт.

34

180-14-25560

SPRING,(L=35)

SN: 57001-UP

1шт.

35

195-15-15130

VALVE,MODULATING

SN: 57001-UP

1шт.

36

145-14-43333

VALVE,MODULATING

SN: 57001-UP

1шт.

37

145-14-43340

SEAT

SN: 57001-UP

1шт.

38

145-14-33450

WASHER

SN: 57001-UP

1шт.

39

145-14-33351

SPRING,(L=53)

SN: 57001-UP

1шт.

40

145-14-33430

SPRING,(L=42.4)

SN: 57001-UP

1шт.

41

145-14-43370

SHIM¤ 0.5MM

SN: 57001-UP

7шт.

42

145-14-33420

SPRING,(L=41.5)

SN: 57001-UP

1шт.

43

144-15-25330

COVER

SN: 57001-UP

1шт.

44

01010-81025

BOLT

SN: 57001-UP

2шт.

45

01643-31032

WASHER

SN: 57001-UP

2шт.

46

155-15-15320

SPOOL,QUICK RETURN

SN: 57001-UP

1шт.

47

155-15-15360

STOPPER

SN: 57001-UP

1шт.

48

04065-03515

RING,SNAP

SN: 57001-UP

1шт.

49

155-15-15351

SLEEVE

SN: 57001-UP

1шт.

50

175-15-45381

VALVE,REDUCING

SN: 57001-UP

1шт.

51

568-15-15570

VALVE,REDUCING

SN: 57001-UP

1шт.

52

180-14-25560

SPRING

SN: 57001-UP

1шт.

53

198-15-15760

VALVE,REDUCING

SN: 57001-UP

1шт.

54

234-15-15230

SPRING¤ (L= 52.0)

SN: 57001-UP

1шт.

55

103-15-15480

SHIM¤ 0.5MM

SN: 57001-UP

1шт.

|55

103-15-15510

SHIM¤ 0.2MM

SN: 57001-UP

1шт.

56

01643-30623

WASHER

SN: 57001-UP

1шт.

57

175-15-45390

RETAINER

SN: 57001-UP

1шт.

58

04065-03515

RING

SN: 57001-UP

1шт.

59

155-15-15370

BOLT

SN: 57001-UP

1шт.

60

175-15-45180

BOLT

SN: 57001-UP

3шт.

61

01011-81005

BOLT

SN: 57001-UP

1шт.

62

01643-31032

WASHER

SN: 57001-UP

4шт.

Выбрано товаров: 66