Запчасти Komatsu D155A-3 ПАРКОВОЧН. РЫЧАГ КАБИНА ОПЕРАТОРА И СИСТЕМА УПРАВЛЕНИЯ

Схема запчастей Komatsu D155A-3 - ПАРКОВОЧН. РЫЧАГ КАБИНА ОПЕРАТОРА И СИСТЕМА УПРАВЛЕНИЯ
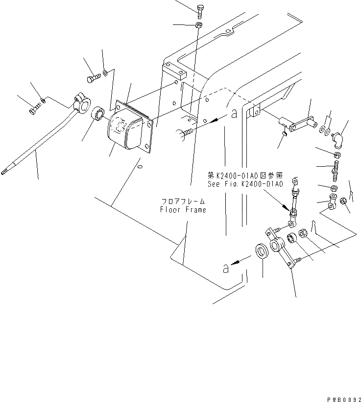
1
2
3
4
5
6
7
8
9
10
11
12
13
14
15
16
17
18
19
20
21
22
23
24
25
FIT
1:1
100%

Артикул

Название

Примечание

Количество

1

14Z-43-11751

BRACKET

SN: 60001-UP

1шт.

2

14Z-43-11940

SHEET (BONDED)

SN: 60001-UP

1шт.

3

06124-02020

BEARING,NEEDLE

SN: 60001-UP

1шт.

4

17A-43-25261

LEVER

SN: 60001-UP

1шт.

5

04010-00516

KEY

SN: 60001-UP

1шт.

6

17A-43-25430

LEVER

SN: 60001-UP

1шт.

7

01010-80830

BOLT

SN: 60001-UP

1шт.

8

01643-30823

WASHER

SN: 60001-UP

1шт.

9

04256-40817

JOINT

SN: 60001-UP

1шт.

10

01643-30823

WASHER

SN: 60001-UP

2шт.

11

01580-10806

NUT

SN: 60001-UP

1шт.

12

581-43-11870

ROD

SN: 60001-UP

1шт.

13

01508-20805

NUT

SN: 60001-UP

1шт.

14

04250-90847

END,ROD

SN: 60001-UP

1шт.

15

01010-81025

BOLT

SN: 60001-UP

4шт.

16

01643-31032

WASHER

SN: 60001-UP

4шт.

17

01010-81030

BOLT

SN: 60001-UP

1шт.

18

01580-11008

NUT

SN: 60001-UP

1шт.

19

17A-43-25531

LEVER

SN: 60001-UP

1шт.

20

06124-01416

BEARING,NEEDLE

SN: 60001-UP

1шт.

21

113-43-23230

WASHER

SN: 60001-UP

1шт.

22

01590-30809

NUT

SN: 60001-UP

1шт.

23

04050-12015

PIN,COTTER

SN: 60001-UP

1шт.

24

01590-30809

NUT

SN: 60001-UP

2шт.

25

04050-12015

PIN,COTTER

SN: 60001-UP

2шт.

Выбрано товаров: 25