Запчасти Komatsu D155A-3 КРЫШКА КРЫЛА ЧАСТИ КОРПУСА

Схема запчастей Komatsu D155A-3 - КРЫШКА КРЫЛА ЧАСТИ КОРПУСА
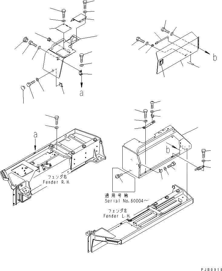
1
2
3
4
5
6
7
8
9
10
11
12
13
13A
14
15
16
17
18
19
20
21
22
23
24
25
26
27
28
29
30
31
32
32
33
33
34
34
35
35
36
37
38
FIT
1:1
100%

Артикул

Название

Примечание

Количество

1

17A-54-14111

COVER,L.H.

SN: 60001-UP

1шт.

2

17A-54-14121

COVER

SN: 60001-UP

1шт.

3

17A-54-14231

LOCK

SN: 60001-UP

1шт.

4

17A-54-14160

PLATE

SN: 60001-UP

1шт.

5

154-54-43250

BAR,R.H.

SN: 60001-UP

1шт.

6

198-54-19150

SPRING

SN: 60001-UP

1шт.

7

01010-80612

BOLT

SN: 60001-UP

2шт.

8

01643-30623

WASHER

SN: 60001-UP

2шт.

9

01010-81020

BOLT

SN: 60001-UP

4шт.

10

01643-31032

WASHER

SN: 60001-UP

4шт.

11

01010-81225

BOLT

SN: 60001-UP

2шт.

12

01643-31232

WASHER

SN: 60001-UP

2шт.

13

04050-12015

PIN,COTTER

SN: 60001-UP

1шт.

13A

01023-10612

SCREW

SN: 60004-UP

4шт.

14

17A-54-14351

BRACKET

SN: 60001-UP

1шт.

15

01010-81020

BOLT

SN: 60001-UP

2шт.

16

01643-31032

WASHER

SN: 60001-UP

2шт.

17

17A-54-14361

BRACKET

SN: 60001-UP

1шт.

18

01010-81020

BOLT

SN: 60001-UP

2шт.

19

01643-31032

WASHER

SN: 60001-UP

2шт.

20

208-54-31280

CLAMP

SN: 60001-UP

2шт.

21

01220-40610

SCREW

SN: 60001-UP

4шт.

22

01641-20608

WASHER

SN: 60001-UP

4шт.

23

17A-54-14211

COVER,R.H

SN: 60001-UP

1шт.

24

17A-54-14311

COVER

SN: 60001-UP

1шт.

25

01010-81225

BOLT

SN: 60001-UP

2шт.

26

01643-31232

WASHER

SN: 60001-UP

2шт.

27

17A-54-14321

COVER

SN: 60001-UP

1шт.

28

01010-81225

BOLT

SN: 60001-UP

2шт.

29

01643-31232

WASHER

SN: 60001-UP

2шт.

30

01010-81225

BOLT

SN: 60001-UP

2шт.

31

01643-31232

WASHER

SN: 60001-UP

2шт.

32

17A-54-12391

CAP

SN: 60001-UP

2шт.

33

01010-81225

BOLT

SN: 60001-UP

2шт.

34

175-54-34170

WASHER

SN: 60001-UP

2шт.

35

17A-54-14221

PLATE

SN: 60001-UP

2шт.

36

01010-81225

BOLT

SN: 60001-UP

4шт.

37

01643-31232

WASHER

SN: 60001-UP

4шт.

38

14X-54-12590

CAP

SN: 60001-UP

1шт.

Выбрано товаров: 39