Запчасти Komatsu D155A-5 ДОПОЛН. ОБОГРЕВАТ (МОРОЗОУСТОЙЧИВ. СПЕЦ-Я)(№7-) КОМПОНЕНТЫ ДВИГАТЕЛЯ

Схема запчастей Komatsu D155A-5 - ДОПОЛН. ОБОГРЕВАТ (МОРОЗОУСТОЙЧИВ. СПЕЦ-Я)(№7-) КОМПОНЕНТЫ ДВИГАТЕЛЯ
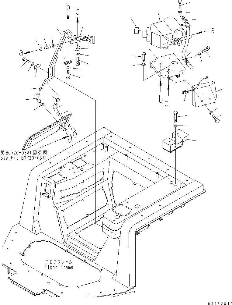
1
2
3
4
5
6
7
8
8
9
9
10
10
11
12
13
14
14
15
16
17
18
19
20
21
22
23
24
25
26
27
28
29
29
30
30
30
30
FIT
1:1
100%

Артикул

Название

Примечание

Количество

1

20G-977-2130

HEATER UNIT

SN: 65275-UP

1шт.

2

205-977-7190

CAP

SN: 65275-UP

2шт.

3

01010-81020

BOLT

SN: 65275-UP

4шт.

4

01643-31032

WASHER

SN: 65275-UP

4шт.

5

17A-911-3350

BRACKET

SN: 65275-UP

1шт.

6

01010-81020

BOLT

SN: 65275-UP

2шт.

7

01643-31032

WASHER

SN: 65275-UP

2шт.

8

130-62-71350

CLAMP

SN: 65275-UP

2шт.

9

01010-81020

BOLT

SN: 65275-UP

2шт.

10

01643-31032

WASHER

SN: 65275-UP

2шт.

11

17A-911-3391

TUBE

SN: 65275-UP

1шт.

12

17A-911-3411

TUBE

SN: 65275-UP

1шт.

13

144-873-1230

HOSE

SN: 65275-UP

2шт.

14

11Y-09-11160

CLIP

SN: 65275-UP

4шт.

15

17A-911-1910

BRACKET

SN: 65275-UP

1шт.

16

01010-81050

BOLT

SN: 65275-UP

2шт.

17

01643-31032

WASHER

SN: 65275-UP

2шт.

18

17A-911-3381

COVER

SN: 65275-UP

1шт.

19

01010-81020

BOLT

SN: 65275-UP

2шт.

20

01643-31032

WASHER

SN: 65275-UP

2шт.

21

20Y-977-2390

SWITCH

SN: 65275-UP

1шт.

22

04434-51412

CLIP

SN: 65275-UP

1шт.

23

01010-81020

BOLT

SN: 65275-UP

1шт.

24

01643-31032

WASHER

SN: 65275-UP

1шт.

25

08034-00519

BAND

SN: 65275-UP

1шт.

26

130-62-71350

CLAMP

SN: 65275-UP

1шт.

27

01010-81020

BOLT

SN: 65275-UP

1шт.

28

01643-31032

WASHER

SN: 65275-UP

1шт.

29

09483-30450

HOSE

SN: 65275-UP

2шт.

30

11Y-09-11160

CLIP

SN: 65275-UP

4шт.

Выбрано товаров: 30