Запчасти Komatsu D155A-5 ЗАДН. КРЫШКА ЧАСТИ КОРПУСА

Схема запчастей Komatsu D155A-5 - ЗАДН. КРЫШКА ЧАСТИ КОРПУСА
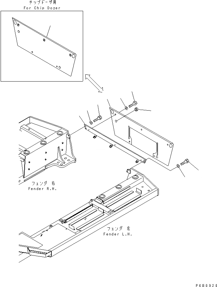
1
2
2
3
3
4
4
5
6
7
FIT
1:1
100%

Артикул

Название

Примечание

Количество

1

17A-54-14551

BRACKET

SN: 65001-UP

1шт.

2

01010-81230

BOLT

SN: 65001-UP

4шт.

3

01643-31232

WASHER

SN: 65001-UP

4шт.

4

17A-54-14521

COVER

SN: 65001-UP

1шт.

4

17A-54-14590

COVER,(FOR CHIP DOZER)

SN: 65001-UP

1шт.

5

01010-81225

BOLT

SN: 65001-UP

5шт.

6

01643-31232

WASHER

SN: 65001-UP

5шт.

7

08037-02512

GROMMET

SN: 65001-UP

2шт.

Выбрано товаров: 8