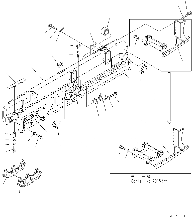
Запчасти Komatsu D155AX-5 ГУСЕНИЧНАЯ РАМА (ПРАВ.) (УДЛИНН. ГУСЕНИЦЫ) ХОДОВАЯ

Схема запчастей Komatsu D155AX-5 - ГУСЕНИЧНАЯ РАМА (ПРАВ.) (УДЛИНН. ГУСЕНИЦЫ) ХОДОВАЯ
1
2
2
3
4
5
5
6
7
8
9
10
11
12
13
14
15
16
16
17
18
19
19
20
20
21
22
23
24
25
26
27
28
29
30
31
FIT
1:1
100%

Артикул

Название

Примечание

Количество

|1

17A-30-00221

TRACK FRAME ASS'Y,R.H.

SN: 70153-UP

1шт.

|1

17A-30-00220

TRACK FRAME ASS'Y,R.H.

SN: 70001-70152

1шт.

1

0

FRAME,R.H.

SN: 75131-UP

1шт.

|1

0

FRAME,R.H.

SN: 70153-75130

1шт.

|2

0

FRAME,R.H.

SN: 70001-70152

1шт.

2

17A-30-21130

SUPPORT (WELDED)

SN: 70001-UP

2шт.

3

17A-30-21250

GUIDE,R.H. (WELDED)

SN: 70001-UP

1шт.

4

17A-30-21350

GUIDE,R.H. (WELDED)

SN: 70001-UP

1шт.

5

17A-30-21140

SUPPORT (WELDED)

SN: 70001-UP

2шт.

6

17A-50-11120

BUSHING

SN: 70001-UP

1шт.

7

17A-50-11130

BUSHING

SN: 70001-UP

1шт.

8

17A-50-12431

BUSHING

SN: 70001-UP

1шт.

9

17A-50-12291

SEAL

SN: 70001-UP

1шт.

10

17A-50-12351

CAGE

SN: 70001-UP

1шт.

11

01010-81230

BOLT

SN: 70001-UP

2шт.

12

01643-31232

WASHER

SN: 70001-UP

2шт.

13

428-54-11480

PLATE

SN: 70001-UP

1шт.

14

01010-81640

BOLT

SN: 70001-UP

2шт.

15

01643-31645

WASHER

SN: 70001-UP

2шт.

16

17A-30-21622

GUARD,R.H.

SN: 75151-UP

1шт.

|16

17A-30-21621

GUARD,R.H.

SN: 70153-75150

1шт.

|16

0

GUARD,R.H.

SN: 70001-70152

1шт.

17

01010-82250

BOLT

SN: 70001-UP

5шт.

18

01643-32260

WASHER

SN: 70001-UP

5шт.

19

01010-82250

BOLT

SN: 70153-UP

3шт.

|19

01010-82250

BOLT

SN: 70001-70152

2шт.

20

01643-32260

WASHER

SN: 70153-UP

3шт.

|20

01643-32260

WASHER

SN: 70001-70152

2шт.

21

17A-30-17251

GUARD,L.H.

SN: 70001-UP

1шт.

22

17A-30-17261

GUARD,R.H.

SN: 70001-UP

1шт.

23

01010-82275

BOLT

SN: 70001-UP

12шт.

24

01643-32260

WASHER

SN: 70001-UP

12шт.

25

195-50-22990

PLUG

SN: 70001-UP

1шт.

26

07020-00000

FITTING,GREASE

SN: 70001-UP

1шт.

27

17A-30-12241

GUIDE PLATE ASS'Y

SN: 70001-UP

2шт.

28

155-30-13230

SPRING

SN: 70001-UP

4шт.

29

195-30-17960

SEAT

SN: 70001-UP

4шт.

30

01016-51260

BOLT

SN: 70001-UP

4шт.

31

01643-31232

WASHER

SN: 70001-UP

4шт.

Выбрано товаров: 39