Запчасти Komatsu D155AX-5 ЗАЩИТА РАДИАТОРА(№7-) ЧАСТИ КОРПУСА

Схема запчастей Komatsu D155AX-5 - ЗАЩИТА РАДИАТОРА(№7-) ЧАСТИ КОРПУСА
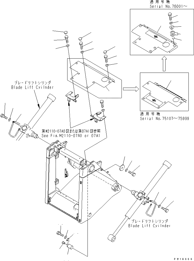
1
2
3
4
4
4
4
4
4
5
5
5
6
6
6
7
7
7
7
7A
7B
7C
7D
8
9
10
11
12
13
14
15
16
17
18
FIT
1:1
100%

Артикул

Название

Примечание

Количество

1

21T-09-11330

WASHER

SN: 70001-UP

2шт.

2

01010-81230

BOLT

SN: 70001-UP

2шт.

3

01643-31232

WASHER

SN: 70001-UP

2шт.

4

17A-54-28151

COVER

SN: 76001-UP

1шт.

4

17A-862-1840

COVER

SN: 75107-75999

1шт.

4

17A-54-12181

COVER

SN: 70001-75106

1шт.

5

01010-81225

BOLT

SN: 76001-UP

4шт.

5

01010-81225

BOLT

SN: 70001-75999

6шт.

6

175-54-34170

WASHER

SN: 76001-UP

4шт.

6

175-54-34170

WASHER

SN: 70001-75999

6шт.

7

15B-54-14220

COLLAR

SN: 76001-UP

2шт.

7

195-54-42981

CAP

SN: 70001-75999

6шт.

7A

175-54-27350

SPRING

SN: 76001-UP

4шт.

7B

175-54-28770

RING

SN: 76001-UP

2шт.

7C

01010-81235

BOLT

SN: 76001-UP

2шт.

7D

01643-31232

WASHER

SN: 76001-UP

2шт.

8

17A-54-12431

GRIP,L.H.

SN: 70001-UP

1шт.

9

01010-81235

BOLT

SN: 70001-UP

2шт.

10

01643-31232

WASHER

SN: 70001-UP

2шт.

11

17A-54-12441

GRIP,R.H.

SN: 70001-UP

1шт.

12

01010-81235

BOLT

SN: 70001-UP

2шт.

13

01643-31232

WASHER

SN: 70001-UP

2шт.

14

17A-54-11151

PIN

SN: 70001-UP

4шт.

15

04082-00312

LOCK

SN: 70001-UP

4шт.

16

01010-81230

BOLT

SN: 70001-UP

8шт.

17

01643-31232

WASHER

SN: 70001-UP

8шт.

18

07049-02430

PLUG

SN: 70001-UP

8шт.

Выбрано товаров: 0