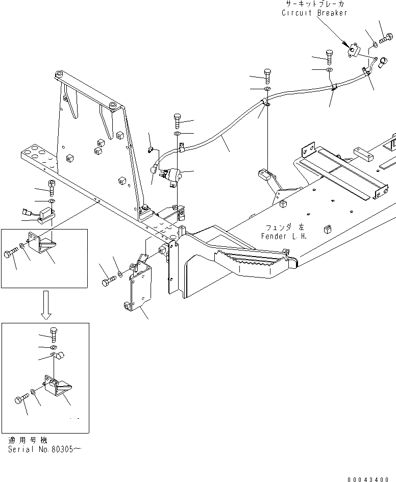
Запчасти Komatsu D155AX-6 КРЫЛО (ОБОГРЕВАТЕЛЬ. РЕЛЕ) (СПЕЦ-Я ДЛЯ СВАЛОК)(№8-) ЧАСТИ КОРПУСА

Схема запчастей Komatsu D155AX-6 - КРЫЛО (ОБОГРЕВАТЕЛЬ. РЕЛЕ) (СПЕЦ-Я ДЛЯ СВАЛОК)(№8-) ЧАСТИ КОРПУСА
1
2
3
4
5
6
7
8
9
10
11
12
13
13
14
14
15
15
16
17
18
19
19
20
20
21
21
22
23
24
FIT
1:1
100%

Артикул

Название

Примечание

Количество

1

17A-06-42670

BRACKET

SN: 80001-UP

1шт.

2

01010-81225

BOLT

SN: 80001-UP

3шт.

3

01643-31232

WASHER

SN: 80001-UP

3шт.

4

600-815-2690

SWITCH,HEATER

SN: 80001-UP

1шт.

5

01010-80820

BOLT

SN: 80001-UP

2шт.

6

01643-30823

WASHER

SN: 80001-UP

2шт.

7

08038-02027

CAP

SN: 80001-UP

1шт.

8

08038-00519

CAP

SN: 80001-UP

1шт.

9

17A-06-41281

WIRING HARNESS

SN: 80001-UP

1шт.

10

04434-51412

CLIP

SN: 80001-UP

1шт.

11

01010-81225

BOLT

SN: 80001-UP

1шт.

12

01643-31232

WASHER

SN: 80001-UP

1шт.

13

04434-51412

CLIP

SN: 80001-UP

2шт.

14

01010-81225

BOLT

SN: 80001-UP

2шт.

15

01643-31232

WASHER

SN: 80001-UP

2шт.

16

7861-93-5390

SENSOR,ANGLE

SN: 80001-UP

1шт.

17

01643-30623

WASHER

SN: 80001-UP

2шт.

18

01252-70635

BOLT

SN: 80001-UP

2шт.

19

17A-06-41653

BRACKET

SN: 80001-UP

1шт.

20

01010-81230

BOLT

SN: 80001-UP

2шт.

21

01643-31232

WASHER

SN: 80001-UP

2шт.

22

600-051-3300

CLIP

SN: 80001-UP

1шт.

23

01010-81225

BOLT

SN: 80001-UP

1шт.

24

01643-31232

WASHER

SN: 80001-UP

1шт.

Выбрано товаров: 24