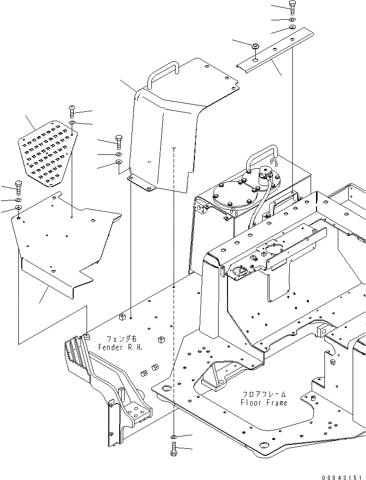
Запчасти Komatsu D155AX-6 КРЫЛО(КРЫШКАПРАВ.)(№8-87) ЧАСТИ КОРПУСА

Схема запчастей Komatsu D155AX-6 - КРЫЛО  (КРЫШКАПРАВ.)(№8-87) ЧАСТИ КОРПУСА
1
2
3
4
5
6
7
8
9
10
11
12
13
14
15
16
17
18
FIT
1:1
100%

Артикул

Название

Примечание

Количество

1

17A-54-45212

COVER

SN: 80001-@

1шт.

2

01010-81230

BOLT

SN: 80004-@

5шт.

2

01010-81230

BOLT

SN: 80001-80003

7шт.

3

01643-31232

WASHER

SN: 80001-80003

7шт.

4

175-54-34170

WASHER

SN: 80001-@

5шт.

5

01010-81230

BOLT

SN: 80004-@

2шт.

6

01643-31232

WASHER

SN: 80004-@

2шт.

7

17A-54-45222

COVER

SN: 80001-80537

1шт.

8

08037-02512

GROMMET

SN: 80001-80537

1шт.

9

01010-81230

BOLT

SN: 80001-@

2шт.

10

01643-31232

WASHER

SN: 80001-80003

2шт.

11

175-54-34170

WASHER

SN: 80001-@

2шт.

12

17A-54-45321

COVER,R.H.

SN: 80001-@

1шт.

13

17A-54-45341

PLATE

SN: 80001-@

1шт.

14

01245-00816

SCREW

SN: 80001-@

7шт.

15

01643-70823

WASHER

SN: 80001-@

7шт.

16

01010-81230

BOLT

SN: 80001-@

4шт.

17

01643-31232

WASHER

SN: 80001-80003

4шт.

18

175-54-34170

WASHER

SN: 80001-@

4шт.

Выбрано товаров: 19