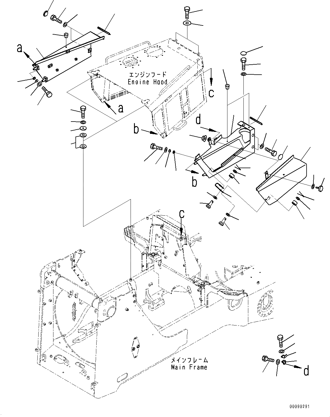
Запчасти Komatsu D155AX-6 КАПОТ И БОКОВ. КРЫШКА ГРУППА, БОКОВ. КРЫШКА НИЖН. И КРЕПЛЕНИЕ (№88-) КАПОТ И БОКОВ. КРЫШКА ГРУППА, ПЕРФОРИРОВАНН. ТИП, ДЛЯ ДВИГАТЕЛЬ С ПОДОГРЕВАТЕЛЬ ХЛАДАГЕНТА

Схема запчастей Komatsu D155AX-6 - КАПОТ И БОКОВ. КРЫШКА ГРУППА, БОКОВ. КРЫШКА НИЖН. И КРЕПЛЕНИЕ (№88-) КАПОТ И БОКОВ. КРЫШКА ГРУППА, ПЕРФОРИРОВАНН. ТИП, ДЛЯ ДВИГАТЕЛЬ С ПОДОГРЕВАТЕЛЬ ХЛАДАГЕНТА
21
20
19
10
9
6
11
9
9
36
3
27
35
34
1
2
4
5
6
7
8
9
10
11
19
20
21
22
24
25
26
28
29
30
31
32
33
34
35
36
37
37
12
23
27
13
14
15
16
17
18
FIT
1:1
100%

Артикул

Название

Примечание

Количество

1

17A-54-42572

Cover

SN: 81028-UP

1шт.

2

17A-54-42584

Cover

SN: 81028-UP

1шт.

3

17A-54-42670

Hinge,Welded

SN: 81028-UP

1шт.

4

195-54-68760

Knob

SN: 81028-UP

1шт.

5

418-54-21390

Wire

SN: 81028-UP

1шт.

6

424-54-14380

Collar

SN: 81028-UP

2шт.

7

01594-01008

Nut

SN: 81028-UP

1шт.

8

01640-21016

Washer

SN: 81028-UP

1шт.

9

01643-31032

Washer

SN: 81028-UP

4шт.

10

04050-13020

Pin, Cotter

SN: 81028-UP

2шт.

11

04205-11028

Pin

SN: 81028-UP

2шт.

12

17A-54-44940

Seal

SN: 81028-UP

1шт.

13

17M-54-43210

Bracket

SN: 81028-UP

1шт.

14

01010-81025

Bolt

SN: 81028-UP

2шт.

15

01643-31032

Washer

SN: 81028-UP

2шт.

16

17A-54-42860

Bracket

SN: 81028-UP

1шт.

17

01010-81025

Bolt

SN: 81028-UP

2шт.

18

01643-31032

Washer

SN: 81028-UP

2шт.

19

01010-81225

Bolt

SN: 81028-UP

3шт.

20

01643-31232

Washer

SN: 81028-UP

3шт.

21

17A-54-45910

Cap

SN: 81343-UP

3шт.

21

195-54-42981

Cap

SN: 81028-81342

3шт.

22

17A-54-42542

Cover

SN: 81028-UP

1шт.

23

17A-54-44940

Seal

SN: 81028-UP

1шт.

24

01010-81225

Bolt

SN: 81028-UP

2шт.

25

01643-31232

Washer

SN: 81028-UP

2шт.

26

17A-54-45910

Cap

SN: 81343-UP

2шт.

26

195-54-42981

Cap

SN: 81028-81342

2шт.

27

07049-01215

Plug

SN: 81028-UP

3шт.

28

01010-81660

Bolt

SN: 81028-UP

2шт.

29

21T-09-11330

Washer

SN: 81028-UP

2шт.

30

195-54-46180

Plate

SN: 81028-UP

4шт.

31

6930-21-4120

Plate

SN: 81028-UP

2шт.

32

01010-81645

Bolt

SN: 81028-UP

2шт.

33

01643-31645

Washer

SN: 81028-UP

2шт.

34

17A-54-42380

Collar

SN: 81028-UP

2шт.

35

17A-54-42350

Spacer

SN: 81028-UP

2шт.

36

01010-81230

Bolt

SN: 81028-UP

2шт.

37

01643-31232

Washer

SN: 81028-UP

2шт.

Выбрано товаров: 39