Запчасти Komatsu D20P-7A-M ГИДР. БАК. (ДЛЯ ЭКСКАВАТ.)(№88-) ГИДРАВЛИКА

Схема запчастей Komatsu D20P-7A-M - ГИДР. БАК. (ДЛЯ ЭКСКАВАТ.)(№88-) ГИДРАВЛИКА
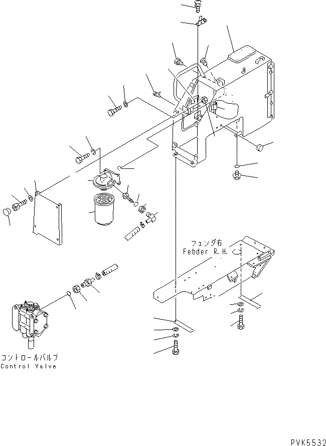
1
2
3
4
5
6
7
8
9
10
11
12
13
13
14
15
16
16
17
17
18
18
19
20
21
22
23
24
25
26
27
28
29
30
31
32
33
34
FIT
1:1
100%

Артикул

Название

Примечание

Количество

|$$1

SERIAL NO. 80228 INDICATES D20P-7A. THE OTHER MACHINES ARE AS FOLLOWS.

-1шт.

|$$2

D20P-7B = 80029

-1шт.

|$$3

D21P-7A = 80266

-1шт.

|$$4

D21P-7B = 80176

-1шт.

1

104-54-44211

CASE

SN: 81604-UP

1шт.

|1

104-54-44210

CASE

SN: 80228-81603

1шт.

2

01010-81025

BOLT

SN: 78604-UP

2шт.

3

01023-10406

SCREW

SN: 78604-UP

2шт.

4

01580-01008

NUT

SN: 78604-UP

2шт.

5

01643-31032

WASHER

SN: 78604-UP

2шт.

6

09461-00020

LEVER ASS'Y

SN: 78604-UP

1шт.

7

103-54-34330

HINGE

SN: 78604-UP

2шт.

8

20B-54-12210

SPRING

SN: 78604-UP

1шт.

9

20N-60-11142

GAUGE,OIL

SN: 78604-UP

1шт.

|9

20N-60-11181

GASKET

SN: 78604-UP

1шт.

10

07002-02434

O-RING

SN: 78604-UP

1шт.

11

07044-12412

PLUG

SN: 78604-UP

1шт.

12

10E-03-11130

CAP

SN: 78604-UP

1шт.

13

205-60-71220

LOCK ASS'Y

SN: 78604-UP

1шт.

14

103-54-34450

PLATE

SN: 78604-UP

1шт.

15

103-54-34460

PLATE

SN: 78604-UP

1шт.

16

01010-81240

BOLT

SN: 78604-UP

4шт.

17

01602-21236

WASHER

SN: 78604-UP

4шт.

18

01643-31232

WASHER

SN: 78604-UP

4шт.

19

113-60-43321

CARTRIDGE

SN: 78604-UP

1шт.

20

113-60-43310

BASE

SN: 78604-UP

1шт.

21

113-60-43330

VALVE

SN: 78604-UP

1шт.

22

07000-03032

O-RING

SN: 78604-UP

1шт.

23

01010-81025

BOLT

SN: 78604-UP

3шт.

24

01602-21030

WASHER

SN: 78604-UP

3шт.

25

104-60-33110

NIPPLE

SN: 78604-UP

1шт.

26

103-60-23170

NUT

SN: 78604-UP

1шт.

27

07002-02034

O-RING

SN: 78604-UP

1шт.

28

103-60-23151

ELBOW

SN: 78604-UP

1шт.

29

07002-03334

O-RING

SN: 78604-UP

1шт.

30

113-60-23120

NUT

SN: 78604-UP

1шт.

31

104-54-34340

COVER

SN: 78604-UP

1шт.

32

01252-30825

BOLT

SN: 78604-UP

4шт.

33

01643-30823

WASHER

SN: 78604-UP

4шт.

34

114-54-43260

PLUG

SN: 78604-UP

4шт.

Выбрано товаров: 0