Запчасти Komatsu D20PLL-7-M ЗАДН. КРЫШКА ЧАСТИ КОРПУСА

Схема запчастей Komatsu D20PLL-7-M - ЗАДН. КРЫШКА ЧАСТИ КОРПУСА
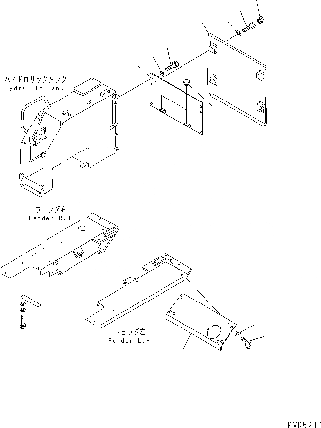
1
2
3
4
5
6
7
8
9
10
11
FIT
1:1
100%

Артикул

Название

Примечание

Количество

1

104-54-34153

COVER

SN: 62801-UP

1шт.

|1

104-54-34152

COVER

SN: 62454-62800

1шт.

2

203-54-32260

STOPPER

SN: 62454-UP

2шт.

3

01010-81445

BOLT

SN: 62454-UP

4шт.

4

01643-31445

WASHER

SN: 62454-UP

4шт.

5

104-54-34161

COVER

SN: 62801-UP

1шт.

|5

104-54-34160

COVER

SN: 62454-62800

1шт.

6

01010-81030

BOLT

SN: 62454-UP

4шт.

7

01643-31032

WASHER

SN: 62454-UP

4шт.

8

09415-02512

CAP

SN: 62454-UP

4шт.

9

104-54-41261

COVER

SN: 62454-UP

1шт.

10

01010-81435

BOLT

SN: 62454-UP

4шт.

11

01643-31445

WASHER

SN: 62454-UP

4шт.

Выбрано товаров: 13