Запчасти Komatsu D20Q-7 ПЕДАЛЬ ТОРМОЗА МЕХАНИЗМ СИСТЕМА УПРАВЛЕНИЯ

Схема запчастей Komatsu D20Q-7 - ПЕДАЛЬ ТОРМОЗА МЕХАНИЗМ СИСТЕМА УПРАВЛЕНИЯ
FIT
1:1
100%

Артикул

Название

Примечание

Количество

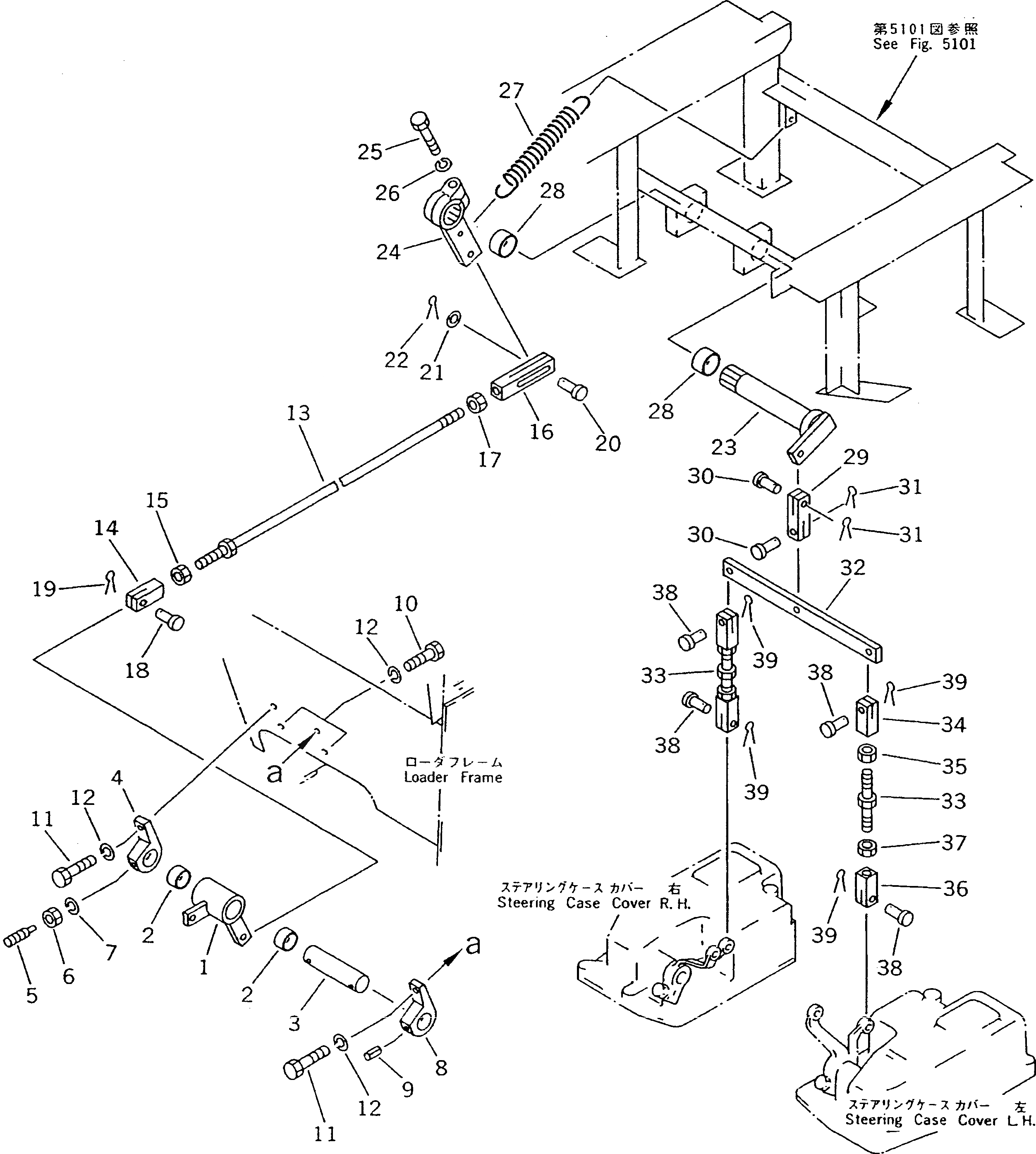
1

104-43-38710

LEVER

SN: 61001-UP

1шт.

2

09350-03020

BUSHING

SN: 61001-UP

2шт.

3

104-43-38390

SHAFT

SN: 61001-UP

1шт.

4

103-43-38170

BOSS

SN: 61001-UP

1шт.

5

01322-41032

SCREW

SN: 61001-UP

1шт.

6

01580-11008

NUT

SN: 61001-UP

1шт.

7

01602-21030

WASHER,SPRING

SN: 61001-UP

1шт.

8

103-43-38180

BOSS

SN: 61001-UP

1шт.

9

04025-00612

PIN,SPRING

SN: 61001-UP

1шт.

10

01010-51025

BOLT

SN: 61001-UP

2шт.

11

01010-51030

BOLT

SN: 61001-UP

2шт.

12

01602-21030

WASHER,SPRING

SN: 61001-UP

4шт.

13

102-43-48150

ROD

SN: 61001-UP

1шт.

14

04210-21040

YOKE

SN: 61001-UP

1шт.

15

01582-11008

NUT

SN: 61001-UP

1шт.

16

104-43-31630

YOKE,L.H. THREAD

SN: 61001-UP

1шт.

17

01508-41006

NUT,L.H. THREAD

SN: 61001-UP

1шт.

18

04205-11028

PIN

SN: 61001-UP

1шт.

19

04050-13020

PIN,COTTER

SN: 61001-UP

1шт.

20

04205-11030

PIN

SN: 61001-UP

1шт.

21

01641-21016

WASHER

SN: 61001-UP

1шт.

22

04050-13020

PIN,COTTER

SN: 61001-UP

1шт.

23

103-43-38211

LEVER

SN: 61001-UP

1шт.

24

103-43-38220

LEVER

SN: 61001-UP

1шт.

|24

06600-01008

BUSHING

SN: 61001-61131

1шт.

25

01010-51245

BOLT

SN: 61001-UP

1шт.

26

01602-21236

WASHER,SPRING

SN: 61001-UP

1шт.

27

103-43-13160

SPRING

SN: 61001-UP

1шт.

28

09350-03020

BUSHING

SN: 61001-UP

2шт.

29

103-43-22170

YOKE

SN: 61001-UP

1шт.

30

04205-11028

PIN

SN: 61001-UP

2шт.

31

04050-13020

PIN,COTTER

SN: 61001-UP

2шт.

32

103-43-32161

LINK \

SN: 61001-UP

1шт.

33

04248-31009

ROD

SN: 61001-UP

2шт.

34

04210-21040

YOKE

SN: 61001-UP

2шт.

35

01582-11008

NUT

SN: 61001-UP

2шт.

36

04220-21040

YOKE,L.H. THREAD

SN: 61001-UP

2шт.

37

01508-41006

NUT,L.H. THREAD

SN: 61001-UP

2шт.

38

04205-11028

PIN

SN: 61001-UP

4шт.

39

04050-13020

PIN,COTTER

SN: 61001-UP

4шт.

Выбрано товаров: 40