Запчасти Komatsu D21A-8T ПОДВЕСКА (ДЛЯ TОБОД КОЛЕСАMING DOZER) ОСНОВН. РАМА И КОМПОНЕНТЫ

Схема запчастей Komatsu D21A-8T - ПОДВЕСКА (ДЛЯ TОБОД КОЛЕСАMING DOZER) ОСНОВН. РАМА И КОМПОНЕНТЫ
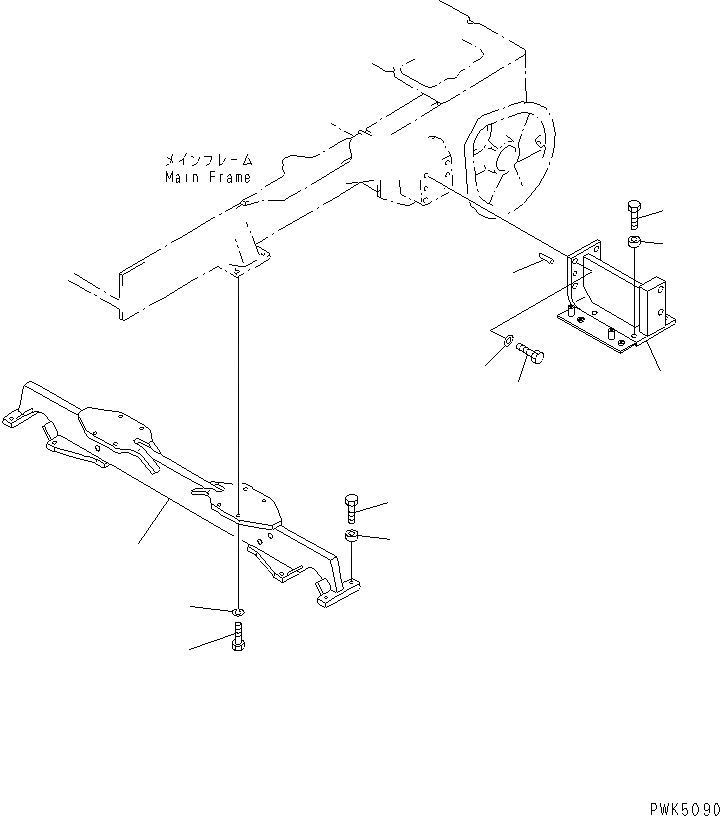
1
2
3
4
5
6
7
8
9
10
11
FIT
1:1
100%

Артикул

Название

Примечание

Количество

1

10G-50-29111

BAR,CROSS

SN: 83001-UP

1шт.

2

01010-81440

BOLT

SN: 83001-UP

8шт.

3

01602-21442

WASHER,SPRING

SN: 83001-UP

8шт.

4

01010-81650

BOLT

SN: 83001-UP

8шт.

5

104-30-21230

BOSS

SN: 83001-UP

8шт.

6

104-Y16-3112

BRACKET L.H,L.H.

SN: 83001-UP

1шт.

6

104-Y16-3122

BRACKET R.H,R.H.

SN: 83001-UP

1шт.

7

01010-82045

BOLT

SN: 83001-UP

8шт.

8

01643-32060

WASHER

SN: 83001-UP

8шт.

9

04020-01842

PIN,DOWEL

SN: 83001-UP

4шт.

10

01010-81655

BOLT

SN: 83001-UP

8шт.

11

104-30-21230

BOSS

SN: 83001-UP

8шт.

Выбрано товаров: 12