Запчасти Komatsu D21P-7A-M ЗАДН. КРЫШКА (ДЛЯ СТАЛЬНАЯ КАБИНА) ЧАСТИ КОРПУСА

Схема запчастей Komatsu D21P-7A-M - ЗАДН. КРЫШКА (ДЛЯ СТАЛЬНАЯ КАБИНА) ЧАСТИ КОРПУСА
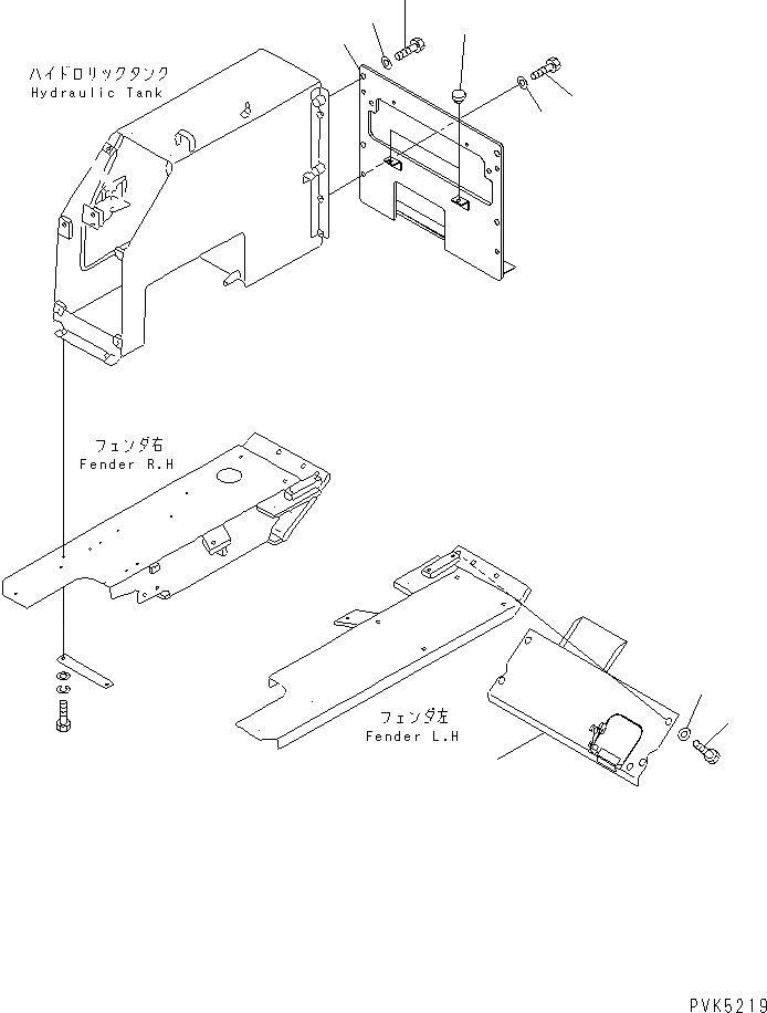
1
2
3
4
5
6
7
8
9
FIT
1:1
100%

Артикул

Название

Примечание

Количество

1

104-Y11-1512

PLATE

SN: 81604-UP

1шт.

|1

104-Y11-1511

COVER

SN: 78604-81603

1шт.

2

203-54-32260

STOPPER

SN: 78604-UP

2шт.

3

01010-81445

BOLT

SN: 78604-UP

4шт.

4

01643-31445

WASHER

SN: 78604-UP

4шт.

5

104-Y11-1520

BRACKET

SN: 78604-UP

1шт.

6

01010-81435

BOLT

SN: 78604-UP

4шт.

7

01643-31445

WASHER

SN: 78604-UP

4шт.

8

01010-81030

BOLT

SN: 78604-UP

4шт.

9

01643-31032

WASHER

SN: 78604-UP

4шт.

Выбрано товаров: 10