Запчасти Komatsu D21P-8T ЗАДН. КРЫШКА (ДЛЯ TОБОД КОЛЕСАMING DOZER И СИСТЕМА ROPS) ЧАСТИ КОРПУСА

Схема запчастей Komatsu D21P-8T - ЗАДН. КРЫШКА (ДЛЯ TОБОД КОЛЕСАMING DOZER И СИСТЕМА ROPS) ЧАСТИ КОРПУСА
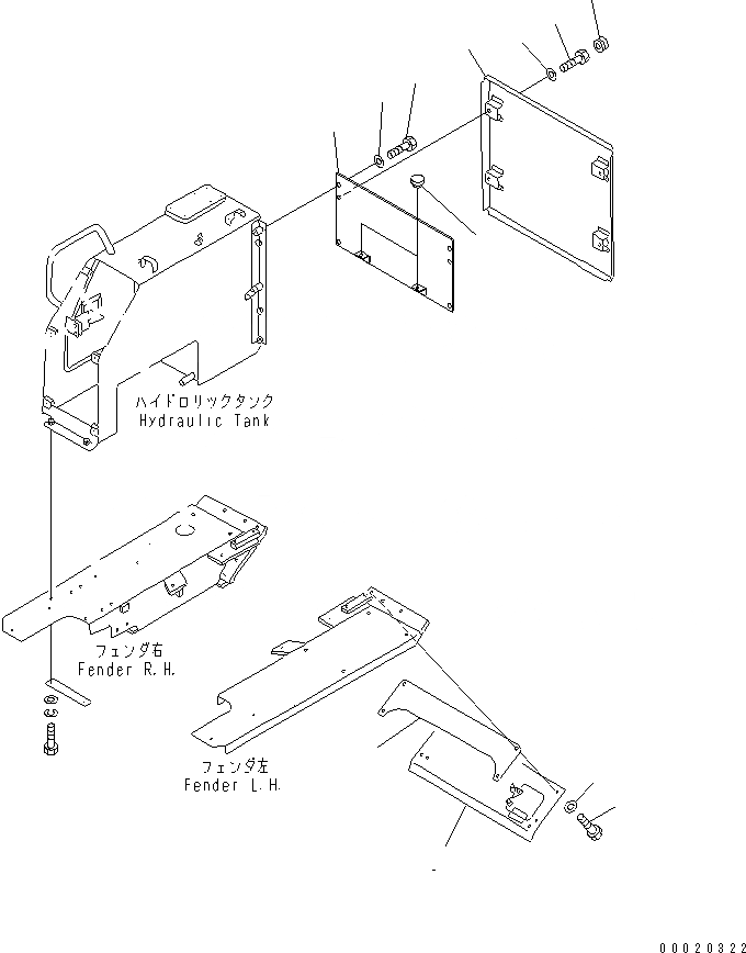
1
2
3
4
5
6
7
8
9
10
11
12
FIT
1:1
100%

Артикул

Название

Примечание

Количество

1

104-54-34153

COVER

SN: 83001-UP

1шт.

2

203-54-32260

STOPPER

SN: 83001-UP

2шт.

3

01010-81450

BOLT

SN: 83001-UP

4шт.

4

01643-31445

WASHER

SN: 83001-UP

4шт.

5

104-54-34161

COVER

SN: 83001-UP

1шт.

6

01010-81030

BOLT

SN: 83001-UP

4шт.

7

01643-31032

WASHER

SN: 83001-UP

4шт.

8

09415-02512

CAP

SN: 83001-UP

4шт.

9

10G-X16-2390

COVER

SN: 83203-UP

1шт.

9

103-54-39191

COVER

SN: 83001-83202

1шт.

10

103-54-34160

BRACKET

SN: 83001-UP

1шт.

11

01010-81435

BOLT

SN: 83001-UP

4шт.

12

01643-31445

WASHER

SN: 83001-UP

4шт.

Выбрано товаров: 13