Запчасти Komatsu D21PL-7-M ПОДВЕСКА ОСНОВН. РАМА И КОМПОНЕНТЫ

Схема запчастей Komatsu D21PL-7-M - ПОДВЕСКА ОСНОВН. РАМА И КОМПОНЕНТЫ
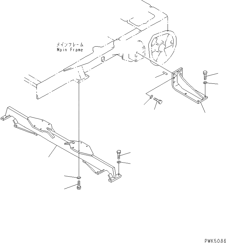
1
2
3
4
5
6
7
8
9
10
11
FIT
1:1
100%

Артикул

Название

Примечание

Количество

1

10G-50-23112

BAR

SN: 62818-UP

1шт.

|1

10G-50-23111

BAR,CROSS

SN: 62454-62817

1шт.

2

01010-81440

BOLT

SN: 62454-UP

8шт.

3

01602-21442

WASHER,SPRING

SN: 62454-UP

8шт.

4

01010-81640

BOLT

SN: 62454-UP

8шт.

5

01643-31645

WASHER

SN: 62454-UP

8шт.

6

10K-50-21122

BRACKET

SN: 62758-UP

2шт.

|6

10K-50-21121

BRACKET

SN: 62454-62757

2шт.

7

01010-82045

BOLT

SN: 62454-UP

8шт.

8

01643-32060

WASHER

SN: 62454-UP

8шт.

9

04020-01842

PIN,DOWEL

SN: 62454-UP

4шт.

10

01010-81645

BOLT

SN: 62454-UP

8шт.

11

01643-31645

WASHER

SN: 62454-UP

8шт.

Выбрано товаров: 13