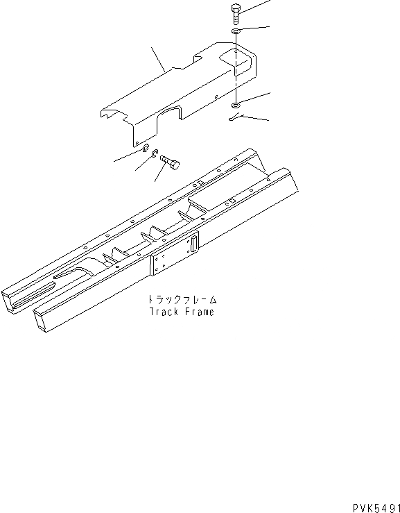
Запчасти Komatsu D21PL-7-M КРЫШКИ ХОДОВАЯ

Схема запчастей Komatsu D21PL-7-M - КРЫШКИ ХОДОВАЯ
1
2
3
4
5
6
7
8
FIT
1:1
100%

Артикул

Название

Примечание

Количество

1

10G-30-27270

COVER,L.H.

SN: 62454-UP

1шт.

|1

103-30-37280

COVER,R.H.

SN: 62454-UP

1шт.

2

01010-81025

BOLT

SN: 62454-UP

10шт.

3

01602-21030

WASHER,SPRING

SN: 62454-UP

10шт.

4

01643-31032

WASHER

SN: 62454-UP

10шт.

5

04050-13015

PIN,COTTER

SN: 62454-UP

2шт.

6

141-30-17160

BOLT

SN: 62454-UP

2шт.

7

01641-21016

WASHER

SN: 62454-UP

2шт.

8

01640-21016

WASHER

SN: 62454-UP

2шт.

Выбрано товаров: 9