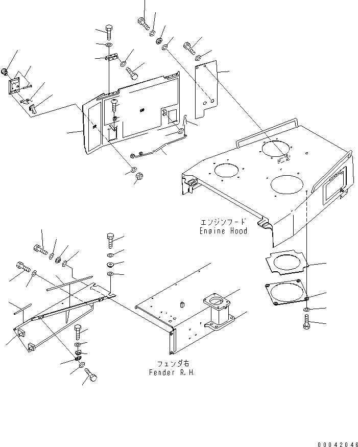
Запчасти Komatsu D275A-5 БОКОВ. КРЫШКА ДВИГ. (ПРАВ.) (ЗАКРЫТ.) ЧАСТИ КОРПУСА

Схема запчастей Komatsu D275A-5 - БОКОВ. КРЫШКА ДВИГ. (ПРАВ.) (ЗАКРЫТ.) ЧАСТИ КОРПУСА
1
2
3
4
4
5
5
6
6
7
7
8
9
10
11
12
13
14
15
16
17
18
19
20
21
22
23
24
25
26
27
28
29
30
31
32
33
34
35
36
37
38
39
40
41
42
43
FIT
1:1
100%

Артикул

Название

Примечание

Количество

1

17M-54-43181

COVER,R.H.

SN: 25001-UP

1шт.

2

01010-81235

BOLT

SN: 25001-UP

1шт.

3

175-54-34170

WASHER

SN: 25001-UP

1шт.

4

20Y-973-2430

COLLAR

SN: 25001-UP

3шт.

5

20Y-54-19920

PLATE

SN: 25001-UP

3шт.

6

01010-81235

BOLT

SN: 25001-UP

3шт.

7

01643-31232

WASHER

SN: 25001-UP

3шт.

8

09412-00006

SEAL

SN: 25001-UP

1шт.

9

09412-00002

SEAL

SN: 25001-UP

1шт.

10

17M-54-43210

BRACKET

SN: 25001-UP

2шт.

11

01010-81020

BOLT

SN: 25001-UP

4шт.

12

01643-31032

WASHER

SN: 25001-UP

4шт.

13

17M-54-43220

BRACKET

SN: 20001-UP

2шт.

14

01010-81020

BOLT

SN: 20001-UP

4шт.

15

01643-31032

WASHER

SN: 25001-UP

4шт.

16

17M-54-43720

COVER,R.H.

SN: 25001-UP

1шт.

17

198-54-55990

LOCK ASS'Y

SN: 25029-UP

2шт.

18

198-54-42480

HOOK

SN: 25001-UP

1шт.

19

198-54-42491

SPRING

SN: 25001-UP

2шт.

20

421-54-11381

LOCK

SN: 25001-UP

2шт.

21

01643-30823

WASHER

SN: 25029-UP

8шт.

22

01580-10806

NUT

SN: 25029-UP

8шт.

23

17M-54-43243

BAR,R.H.

SN: 25001-UP

1шт.

24

01643-31232

WASHER

SN: 25001-UP

1шт.

25

04050-13020

PIN

SN: 25001-UP

1шт.

26

01023-10510

SCREW

SN: 25001-UP

2шт.

27

20R-54-11460

SPRING

SN: 25001-UP

1шт.

28

14X-911-1330

HINGE

SN: 25001-UP

2шт.

29

01010-81020

BOLT

SN: 25001-UP

6шт.

30

01643-31032

WASHER

SN: 25001-UP

6шт.

31

01010-81020

BOLT

SN: 25001-UP

6шт.

32

01643-31032

WASHER

SN: 25001-UP

6шт.

33

17M-54-43142

COVER,R.H.

SN: 25001-UP

1шт.

34

01010-81225

BOLT

SN: 25001-UP

2шт.

35

175-54-34170

WASHER

SN: 25001-UP

2шт.

36

20Y-973-2430

COLLAR

SN: 25001-UP

2шт.

37

195-54-75990

SPACER

SN: 25001-UP

2шт.

38

01010-81235

BOLT

SN: 25001-UP

2шт.

39

01643-31232

WASHER

SN: 25001-UP

2шт.

40

17M-54-42160

COVER

SN: 25001-UP

1шт.

41

17M-54-42170

SHEET

SN: 25001-UP

1шт.

42

01010-81225

BOLT

SN: 25001-UP

4шт.

43

01643-31232

WASHER

SN: 25001-UP

4шт.

Выбрано товаров: 0