Запчасти Komatsu D275A-5R РЫХЛИТЕЛЬ (ДЛЯ ГИГАНТСК. РЫХЛИТ) (С ТОЛКАЮЩ. БЛОК)(№-) РАБОЧЕЕ ОБОРУДОВАНИЕ

Схема запчастей Komatsu D275A-5R - РЫХЛИТЕЛЬ (ДЛЯ ГИГАНТСК. РЫХЛИТ) (С ТОЛКАЮЩ. БЛОК)(№-) РАБОЧЕЕ ОБОРУДОВАНИЕ
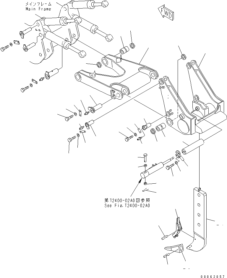
1
2
3
3
4
4
5
5
6
6
7
7
8
8
9
10
11
12
13
13
14
15
16
17
18
18
19
20
21
22
23
24
25
26
27
28
FIT
1:1
100%

Артикул

Название

Примечание

Количество

1

17M-79-41150

BEAM

SN: 35001-UP

1шт.

2

175-78-61271

BUSHING

SN: 35001-UP

2шт.

3

17M-78-41170

PIN

SN: 35001-UP

4шт.

4

07020-00000

FITTING,GREASE

SN: 35001-UP

4шт.

5

205-70-61560

PLATE

SN: 35001-UP

4шт.

6

01010-62040

BOLT

SN: 35001-UP

8шт.

7

01643-32060

WASHER

SN: 35001-UP

8шт.

8

175-78-61281

SEAL

SN: 35001-UP

4шт.

9

17M-79-11120

PIN

SN: 35001-UP

1шт.

10

175-79-61160

PLATE

SN: 35001-UP

2шт.

11

01010-81030

BOLT

SN: 35001-UP

4шт.

12

01643-51032

WASHER

SN: 35001-UP

4шт.

13

195-79-52110

COLLAR

SN: 35001-UP

2шт.

14

195-79-52130

PIN

SN: 35001-UP

1шт.

15

04050-16040

PIN

SN: 35001-UP

1шт.

16

17M-78-21111

ARM

SN: 35001-UP

1шт.

17

175-78-61271

BUSHING

SN: 35001-UP

2шт.

18

175-78-61281

SEAL

SN: 35001-UP

4шт.

19

17M-78-11150

PIN

SN: 35001-UP

2шт.

20

07020-00000

FITTING,GREASE

SN: 35001-UP

2шт.

21

205-70-61560

PLATE

SN: 35001-UP

2шт.

22

01010-62040

BOLT

SN: 35001-UP

4шт.

23

01643-32060

WASHER

SN: 35001-UP

4шт.

24

195-79-31141

SHANK

SN: 35001-UP

1шт.

25

09244-02508

PIN

SN: 35001-UP

1шт.

26

195-78-21580

PROTECTOR

SN: 35001-UP

1шт.

27

09244-02508

PIN

SN: 35001-UP

2шт.

28

195-78-21331

POINT

SN: 35001-UP

1шт.

Выбрано товаров: 0