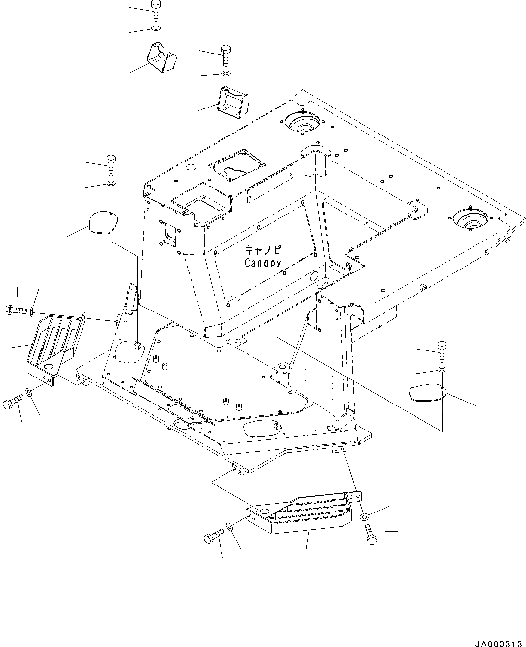
Запчасти Komatsu D31EX-22 СИСТЕМА ROPS, НАВЕС КРЕПЛЕНИЕ (№-) СИСТЕМА ROPS, С МАСТЕР КЛЮЧ, ДЛЯ MACHINE С НАВЕСОМ ОБОГРЕВАТЕЛЬ.

Схема запчастей Komatsu D31EX-22 - СИСТЕМА ROPS, НАВЕС КРЕПЛЕНИЕ (№-) СИСТЕМА ROPS, С МАСТЕР КЛЮЧ, ДЛЯ MACHINE С НАВЕСОМ ОБОГРЕВАТЕЛЬ.
2
4
9
11
10
10
11
9
5
8
8
7
7
6
4
3
3
3
4
3
1
4
FIT
1:1
100%

Артикул

Название

Примечание

Количество

1

12Y-978-1912

Bracket

SN: 60001-UP

1шт.

2

12Y-978-1922

Bracket

SN: 60001-UP

1шт.

3

01010-81225

Bolt

SN: 60001-UP

8шт.

4

01643-31232

Washer

SN: 60001-UP

8шт.

5

11Y-43-32410

Bracket

SN: 60001-UP

1шт.

6

11Y-43-32420

Bracket

SN: 60001-UP

1шт.

7

01010-D1020

Bolt

SN: 60001-UP

4шт.

8

01643-71032

Washer

SN: 60001-UP

4шт.

9

11Y-Z78-1191

Plate

SN: 60001-UP

2шт.

10

01010-80820

Bolt

SN: 60001-UP

2шт.

11

01643-30823

Washer

SN: 60001-UP

2шт.

Выбрано товаров: 11