Запчасти Komatsu D31P-20A ПЕДАЛЬ ТОРМОЗА МЕХАНИЗМ (ДЛЯ TWO РЫЧАГИ РУЛЕВ. УПРАВЛЕНИЕ) КАБИНА ОПЕРАТОРА И СИСТЕМА УПРАВЛЕНИЯ

Схема запчастей Komatsu D31P-20A - ПЕДАЛЬ ТОРМОЗА МЕХАНИЗМ (ДЛЯ TWO РЫЧАГИ РУЛЕВ. УПРАВЛЕНИЕ) КАБИНА ОПЕРАТОРА И СИСТЕМА УПРАВЛЕНИЯ
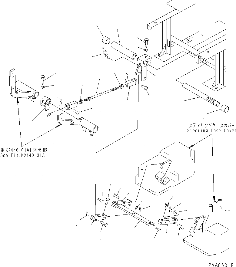
1
2
3
4
5
6
7
8
9
9
10
10
11
12
13
14
14A
15
15A
16
17
18
18
18
19
19
19
20
20
21
21
22
22
23
23
24
FIT
1:1
100%

Артикул

Название

Примечание

Количество

1

113-43-41210

LEVER

SN: 45001-UP

1шт.

2

01010-81245

BOLT

SN: 45001-UP

1шт.

3

01602-21236

WASHER,SPRING

SN: 45001-UP

1шт.

4

04248-31276

ROD

SN: 45001-UP

1шт.

5

04211-21266

YOKE

SN: 45001-UP

1шт.

6

01582-11210

NUT

SN: 45001-UP

1шт.

7

113-43-41360

YOKE,L.H. THREAD

SN: 45001-UP

1шт.

8

01508-41207

NUT,L.H. THREAD

SN: 45001-UP

1шт.

9

04205-11235

PIN

SN: 45001-UP

2шт.

10

04050-13022

PIN,COTTER

SN: 45001-UP

2шт.

11

113-43-41311

LEVER

SN: 45001-UP

1шт.

12

01010-81040

BOLT

SN: 45001-UP

1шт.

13

01602-21030

WASHER,SPRING

SN: 45001-UP

1шт.

14

113-43-41330

COLLAR

SN: 45001-UP

1шт.

14A

09350-02820

BUSHING

SN: 45001-UP

1шт.

15

114-43-41210

SHAFT

SN: 45001-UP

1шт.

15A

09350-03020

BUSHING

SN: 45001-UP

1шт.

16

113-43-41410

YOKE

SN: 45001-UP

1шт.

17

113-43-41420

PLATE

SN: 45001-UP

1шт.

18

04205-11235

PIN

SN: 45001-UP

4шт.

19

04050-13022

PIN,COTTER

SN: 45001-UP

4шт.

20

113-43-41430

YOKE

SN: 45001-UP

2шт.

21

04205-11238

PIN

SN: 45001-UP

2шт.

22

01641-21223

WASHER

SN: 45001-UP

2шт.

23

04050-13022

PIN,COTTER

SN: 45001-UP

2шт.

24

198-43-19250

SPRING

SN: 45001-UP

1шт.

Выбрано товаров: 26