Запчасти Komatsu D31PG-20A СИДЕНЬЕ ОПЕРАТОРА (ЖЕСТК.) (КАБИНА ROPS)(№8-) КАБИНА ОПЕРАТОРА И СИСТЕМА УПРАВЛЕНИЯ

Схема запчастей Komatsu D31PG-20A - СИДЕНЬЕ ОПЕРАТОРА (ЖЕСТК.) (КАБИНА ROPS)(№8-) КАБИНА ОПЕРАТОРА И СИСТЕМА УПРАВЛЕНИЯ
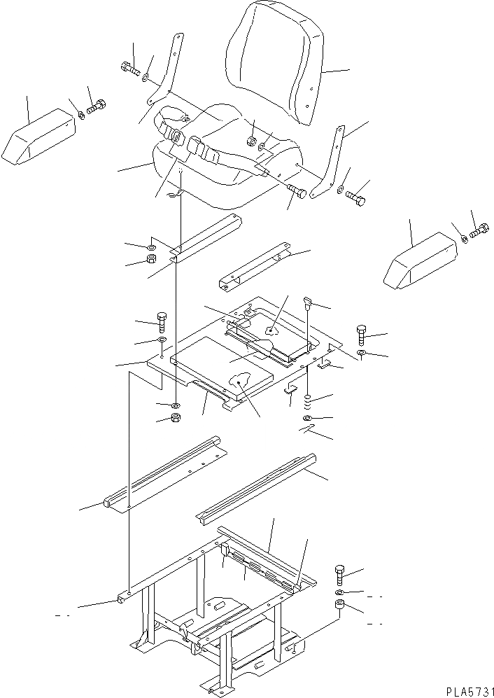
1
2
3
3
4
4
5
5
6
7
8
9
10
11
12
13
13
14
15
16
17
18
19
20
21
22
23
24
24
25
26
27
28
29
30
31
32
32
33
33
34
34
35
35
36
36
37
38
39
40
FIT
1:1
100%

Артикул

Название

Примечание

Количество

|1

120-57-31204

SEAT ASS'Y

SN: 46897-UP

1шт.

|1

0

SEAT ASS'Y

SN: 45825-46896

1шт.

|1

114-57-41251

SEAT ASS'Y

SN: 46897-UP

1шт.

|1

0

SEAT ASS'Y

SN: 45825-46896

1шт.

1

114-57-41260

CUSHION

SN: 45825-UP

1шт.

2

114-57-41271

CUSHION,BACK

SN: 46897-UP

1шт.

|2

0

CUSHION,BACK

SN: 45825-46896

1шт.

3

114-57-41280

PLATE

SN: 45825-UP

2шт.

4

01010-80825

BOLT

SN: 45825-UP

8шт.

5

01643-30823

WASHER

SN: 45825-UP

8шт.

6

114-57-41171

BRACKET,L.H.

SN: 45825-UP

1шт.

7

114-57-41181

BRACKET,R.H.

SN: 45825-UP

1шт.

8

01580-11210

NUT

SN: 45825-UP

4шт.

9

01643-31232

WASHER

SN: 45825-UP

4шт.

10

113-C62-2813

PLATE

SN: 47617-UP

1шт.

|10

113-C62-2812

PLATE

SN: 45001-47616

1шт.

11

113-C62-2840

SEAL

SN: 45001-UP

1шт.

12

113-C62-1320

SEAL

SN: 45001-UP

2шт.

13

113-C62-1340

SEAL

SN: 45001-UP

2шт.

14

113-C62-1350

SEAL

SN: 45001-UP

1шт.

15

113-C62-2551

SHEET

SN: 45001-UP

1шт.

16

113-C62-2561

SHEET

SN: 45001-UP

1шт.

17

01010-81225

BOLT

SN: 45825-UP

4шт.

18

01643-31232

WASHER

SN: 45001-UP

4шт.

19

09459-11033

LOCK

SN: 45001-UP

1шт.

20

09459-01614

SPRING

SN: 45001-UP

1шт.

21

01642-01016

WASHER

SN: 45001-UP

1шт.

22

04050-13015

PIN,COTTER

SN: 45001-UP

1шт.

23

114-57-49142

FRAME

SN: 47617-UP

1шт.

|23

114-57-49141

FRAME

SN: 45001-47616

1шт.

24

114-X11-2460

SEAL

SN: 45001-UP

2шт.

25

114-X11-2450

SEAL

SN: 45001-UP

1шт.

26

144-Y11-3730

SEAL

SN: 45001-UP

1шт.

27

01010-81465

BOLT

SN: 47617-UP

4шт.

|27

01010-81460

BOLT

SN: 45001-47616

4шт.

28

01643-31445

WASHER

SN: 45001-UP

4шт.

29

198-21-12240

BOSS

SN: 45001-UP

4шт.

30

114-54-44820

COVER,L.H.

SN: 45825-UP

1шт.

31

114-54-44830

COVER,R.H.

SN: 45825-UP

1шт.

32

01010-81025

BOLT

SN: 45001-UP

6шт.

33

01643-31032

WASHER

SN: 45001-UP

6шт.

34

114-57-41140

REST,ARM

SN: 45001-UP

2шт.

35

01010-81020

BOLT

SN: 45001-UP

2шт.

36

01643-31032

WASHER

SN: 45001-UP

2шт.

37

09409-10001

BELT¤ LAP

SN: 45001-UP

1шт.

38

0

BOLT

SN: 45001-UP

2шт.

39

0

NUT

SN: 45001-UP

2шт.

40

0

WASHER

SN: 45001-UP

2шт.

Выбрано товаров: 0