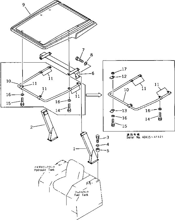
Запчасти Komatsu D31PLL-18 НАВЕС(№-) ЧАСТИ КОРПУСА

Схема запчастей Komatsu D31PLL-18 - НАВЕС(№-) ЧАСТИ КОРПУСА
FIT
1:1
100%

Артикул

Название

Примечание

Количество

G-1

0

CANOPY GROUP

SN: 40001-42151

1шт.

|$$2

====================

-1шт.

1

103-Y06-1125

POLE,L.H.

SN: 41210-42151

1шт.

1

103-Y06-1122

POLE,L.H.

SN: 40178-41209

1шт.

1

0

POLE,L.H.

SN: 40001-40177

1шт.

2

103-Y06-1115

POLE,R.H.

SN: 41210-42151

1шт.

2

103-Y06-1112

POLE,R.H.

SN: 40178-41209

1шт.

2

0

POLE,R.H.

SN: 40001-40177

1шт.

3

01010-51045

BOLT

SN: 41210-@

12шт.

3

01010-51045

BOLT

SN: 40001-41209

8шт.

4

01602-21030

WASHER,SPRING

SN: 41210-@

12шт.

4

01602-21030

WASHER,SPRING

SN: 40001-41209

8шт.

5

103-Y06-1140

BOSS

SN: 41210-@

12шт.

5

103-Y06-1140

BOSS

SN: 40001-41209

8шт.

6

113-X06-1221

BRACKET

SN: 40001-42151

1шт.

7

01010-51030

BOLT

SN: 40001-42151

8шт.

8

01643-31032

WASHER

SN: 40001-42151

8шт.

9

113-X06-1111

ROOF

SN: 41514-42151

1шт.

9

0

ROOF

SN: 40001-41513

1шт.

10

113-X06-1171

PIPE

SN: 40523-42151

1шт.

10

113-X06-1170

PIPE

SN: 40001-40522

1шт.

11

113-X06-1181

CLIP

SN: 40523-42151

4шт.

11

113-X06-1180

CLIP

SN: 40001-40522

6шт.

12

103-Y06-1160

CLIP

SN: 40523-42151

2шт.

13

103-Y06-1170

CLIP

SN: 40523-42151

2шт.

14

01010-51055

BOLT

SN: 40523-42151

4шт.

14

01010-51050

BOLT

SN: 40001-40522

4шт.

15

01010-51050

BOLT

SN: 40523-42151

2шт.

15

01010-51020

BOLT

SN: 40001-40522

2шт.

16

01643-31032

WASHER

SN: 40001-42151

6шт.

17

01643-31445

WASHER

SN: 40523-42151

2шт.

|$$32

====================

-1шт.

Выбрано товаров: 32