Запчасти Komatsu D31PX-21 ОСНОВН. КОНСТРУКЦИЯ (РЫЧАГ БЛОКИРОВКИ ОТВАЛА) КАБИНА ОПЕРАТОРА И СИСТЕМА УПРАВЛЕНИЯ

Схема запчастей Komatsu D31PX-21 - ОСНОВН. КОНСТРУКЦИЯ (РЫЧАГ БЛОКИРОВКИ ОТВАЛА) КАБИНА ОПЕРАТОРА И СИСТЕМА УПРАВЛЕНИЯ
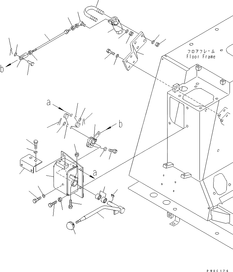
1
2
3
4
5
6
6
7
8
9
10
11
12
13
14
15
16
16
17
17
18
19
20
21
22
23
24
25
26
27
28
29
30
31
32
33
34
35
36
37
FIT
1:1
100%

Артикул

Название

Примечание

Количество

1

11Y-43-12211

BRACKET

SN: 50001-UP

1шт.

2

01010-80825

BOLT

SN: 50001-UP

3шт.

3

01643-30823

WASHER

SN: 50001-UP

3шт.

4

01016-50840

BOLT

SN: 50001-UP

1шт.

5

01016-50830

BOLT

SN: 50001-UP

1шт.

6

01580-10806

NUT

SN: 50001-UP

2шт.

7

11Y-43-12221

LEVER

SN: 50001-UP

1шт.

8

09304-10835

KNOB

SN: 50001-UP

1шт.

9

06123-01614

BEARING

SN: 50001-UP

2шт.

10

04010-00519

KEY

SN: 50001-UP

1шт.

11

11Y-43-12281

LEVER

SN: 50001-UP

1шт.

12

01643-30823

WASHER

SN: 50001-UP

1шт.

13

01010-80830

BOLT

SN: 50001-UP

1шт.

14

09463-00006

SPRING

SN: 50001-UP

1шт.

15

09463-00002

SPRING

SN: 50001-UP

1шт.

16

01643-30623

WASHER

SN: 50001-UP

2шт.

17

04050-11612

PIN

SN: 50001-UP

2шт.

18

11Y-43-12160

BRACKET

SN: 50001-UP

1шт.

19

01643-80823

WASHER

SN: 50001-UP

2шт.

20

01010-80820

BOLT

SN: 50001-UP

2шт.

21

04221-20634

YOKE

SN: 50001-UP

1шт.

22

01508-40603

NUT

SN: 50001-UP

1шт.

23

04248-30623

ROD

SN: 50001-UP

1шт.

24

04205-10622

PIN

SN: 50001-UP

1шт.

25

01640-20610

WASHER

SN: 50001-UP

1шт.

26

04050-11612

PIN

SN: 50001-UP

1шт.

27

01580-10605

NUT

SN: 50001-UP

1шт.

28

04256-40615

JOINT

SN: 50001-UP

1шт.

29

01643-30623

WASHER

SN: 50001-UP

1шт.

30

01580-10605

NUT

SN: 50001-UP

1шт.

31

11Y-43-12260

BRACKET

SN: 50001-UP

1шт.

32

01643-30823

WASHER

SN: 50001-UP

4шт.

33

01010-80825

BOLT

SN: 50001-UP

4шт.

34

20Y-62-15651

VALVE

SN: 50001-UP

1шт.

35

07283-23442

CLIP

SN: 50001-UP

2шт.

36

01643-31032

WASHER

SN: 50001-UP

4шт.

37

01599-01011

NUT

SN: 50001-UP

4шт.

Выбрано товаров: 37