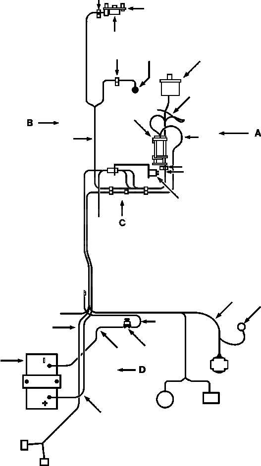
Запчасти Komatsu D32E-1 ЭЛЕКТРОПРОВОДКА С СИСТЕМОЙ ROPS ЭЛЕКТР.

Схема запчастей Komatsu D32E-1 - ЭЛЕКТРОПРОВОДКА С СИСТЕМОЙ ROPS ЭЛЕКТР.
19
39
38
14
28
20
5
22
4
6
12
6
25
6
37
2
9
24
3
1
4
FIT
1:1
100%

Артикул

Название

Примечание

Количество

1

BATTERY (SEE PG 08-016)

-29шт.

|$1

1306 946 H91

WIRING AND CLIPS

-54шт.

2

1279 089 H1

CABLE, MASTER SWITCH TO GROUND

1шт.

|$3

180 120

BOLT, HEX - 3/8NCx3/4

1шт.

|$4

390 305 C1

WASHER, FLAT - 3/8

1шт.

3

1270 760 H1

CABLE, MASTER SWITCH TO BATTERY NEG

1шт.

4

1270 790 H1

CABLE, STARTER TO BATTERY POS

1шт.

5

183 039 H1

CABLE, ENGINE TO GROUND

1шт.

|$8

931 833 R1

BOLT, HEX - M12x25

1шт.

|$9

25 710 R1

WASHER, FLAT - 1/2

1шт.

|$10

180 122

BOLT, HEX - 3/8NCx1

1шт.

|$11

390 305 C1

WASHER, FLAT - 3/8

1шт.

6

1306 801 H91

HARNESS, MAIN ELECTRICAL

1шт.

7

1306 945 H1

BRACKET, SUPPORT

1шт.

|$16

30 041 R1

BOLT, HEX - M12x25

2шт.

|$17

30 177 R1

WASHER, FLAT - M12

2шт.

8

301 272 C1

CLIP, CLOSED

2шт.

|$19

25 222 R1

BOLT, HEX - 1/4NCx3/4

2шт.

|$20

25 542 R1

WASHER, FLAT - 1/4

2шт.

9

1306 802 H91

HARNESS, REAR

1шт.

10

1236 341 H1

DIODE

1шт.

11

299 566 C1

CLIP, CLOSED

2шт.

12

299 614 C1

CLIP, CLOSED

1шт.

|$25

30 041 R1

BOLT, HEX - M12x25

1шт.

|$26

30 177 R1

WASHER - M12

1шт.

13

299 615 C1

CLIP, CLOSED

1шт.

14

299 400 C1

CLIP, CLOSED

3шт.

|$29

30 019 R1

BOLT, HEX - M10x20

3шт.

|$30

30 176 R1

WASHER, FLAT - M10

3шт.

15

363 660 R1

CLIP, CLOSED

2шт.

16

850 218 C1

CLIP, CLOSED

1шт.

17

308 579 C1

CLIP, CLOSED

3шт.

18

363 660 R1

CLIP, CLOSED

2шт.

19

299 400 C1

CLIP, CLOSED

1шт.

|$36

1270 322 H91

ALTERNATOR AND CRANKING MOTOR

-54шт.

20

ALTERNATOR (SEE PG 08-028)

-29шт.

|$38

30 003 R1

BOLT, HEX - M8x25

1шт.

|$39

120 391

WASHER, FLAT - #10

2шт.

21

1246 021 H1

FAN, ALTERNATOR

1шт.

22

MOTOR, CRANKING (SEE PG 08-024)

-29шт.

|$42

31 148 R1

BOLT, HEX - M10x30

2шт.

|$43

1306 750 H91

SWITCHES, FUSES AND RELAYS

-54шт.

23

621 771 C91

SWITCH, NEUTRAL START

1шт.

|$45

1232 847 H1

WASHER, NEUTRAL START

1шт.

|$46

177 717 R1

NUT, HEX - 3/4NF

1шт.

24

930 587 C4

SWITCH, MASTER DISCONNECT

1шт.

|$48

1214 890 H2

KEY, DISCONNECT SWITCH

2шт.

25

1207 386 H2

SWITCH, MAGNETIC

1шт.

|$50

22 470 R1

BOLT, HEX - 1/4NCx3/4

2шт.

|$51

120 392

WASHER, FLAT - 1/4

2шт.

|$52

120 380

WASHER, LOCK - 1/4

2шт.

|$53

120 375

NUT, HEX - 1/4NC

2шт.

|$54

120 214

WASHER, LOCK - 5/16 - TERMINAL

2шт.

|$55

120 376

NUT, HEX - 5/16 - TERMINAL

2шт.

|$56

120 217

WASHER, LOCK - #10 - TERMINAL

2шт.

|$57

120 614

NUT, HEX - #10-32 - TERMINAL

2шт.

26

677 161 R94

SWITCH, ENGINE OIL PRESSURE SENDER

1шт.

|$59

443 998

ADAPTER, SWITCH

1шт.

|$60

120 217

WASHER, LOCK - #10

1шт.

|$61

120 614

NUT, HEX - #10-32

1шт.

27

1120 331 C1

SWITCH, HOURMETER

1шт.

|$63

443 998

ADAPTER, SWITCH

1шт.

28

1216 162 H1

SENDER, ENGINE COOLANT TEMPERATURE

1шт.

29

739 985 C1

SWITCH, AIR CLEANER FILTER

1шт.

30

1216 162 H1

SENDER, TRANSMISSION TEMPERATURE

1шт.

31

740 986 C2

SWITCH, BACK UP

1шт.

32

1308 132 H1

SWITCH, PLASTIC HOUSING

1шт.

33

1308 427 H1

PLATE, SWITCH HOUSING

1шт.

|$70

440 502

SCREW, MOUNTING - #10NCx5/8

2шт.

|$71

120 391

WASHER, FLAT - #10

2шт.

34

419-43-12260

SWITCH, GEAR INDICATOR

3шт.

35

1221 297 H1

SWITCH, TRANS. PRESSURE

1шт.

36

1209 933 H1

ADAPTER

1шт.

37

627 670 C1

SWITCH, WARNING HORN - OPTIONAL

1шт.

37

453 453 C1

SWITCH, WARNING HORN - OPTIONAL

1шт.

|$77

1270 270 H91

WARNING HORN

-54шт.

38

739 761 C1

HORN, WARNING

1шт.

|$79

138 566

WASHER, LOCK - 7/8

1шт.

|$80

197 420 H2

NUT, HEX - 7/8NF

1шт.

39

1278 276 H1

BRACKET, MOUNTING

1шт.

|$82

180 120

BOLT, HEX - 3/8NCx3/4

2шт.

|$83

390 305 C1

WASHER, FLAT - 3/8

2шт.

|$84

1277 386 H91

FRONT AND REAR LIGHTING

-54шт.

40

1270 763 H91

HARNESS, FRONT LIGHT

1шт.

41

1270 764 H91

HARNESS, REAR LIGHT

1шт.

42

1277 385 H1

BRACKET, REAR LIGHT

1шт.

43

LIGHT, WORK (SEE PG 08-030)

-29шт.

|$89

931 830 R1

BOLT, HEX - M8x20

3шт.

|$90

931 841 R1

BOLT, HEX - M8x50

3шт.

44

1281 358 H1

BRACKET, FRONT LIGHTING

3шт.

45

145 705 H1

GROMMET - 7/8

2шт.

46

164 694 H1

GROMMET - 9/16

4шт.

47

561 926 C1

CONNECTOR

2шт.

|$99

-1шт.

|$96

F1 - PART NUMBER IS A NON-SERVICE PART AND IS LISTED FOR REFERENCE ONLY.

-1шт.

|$98

-1шт.

Выбрано товаров: 96