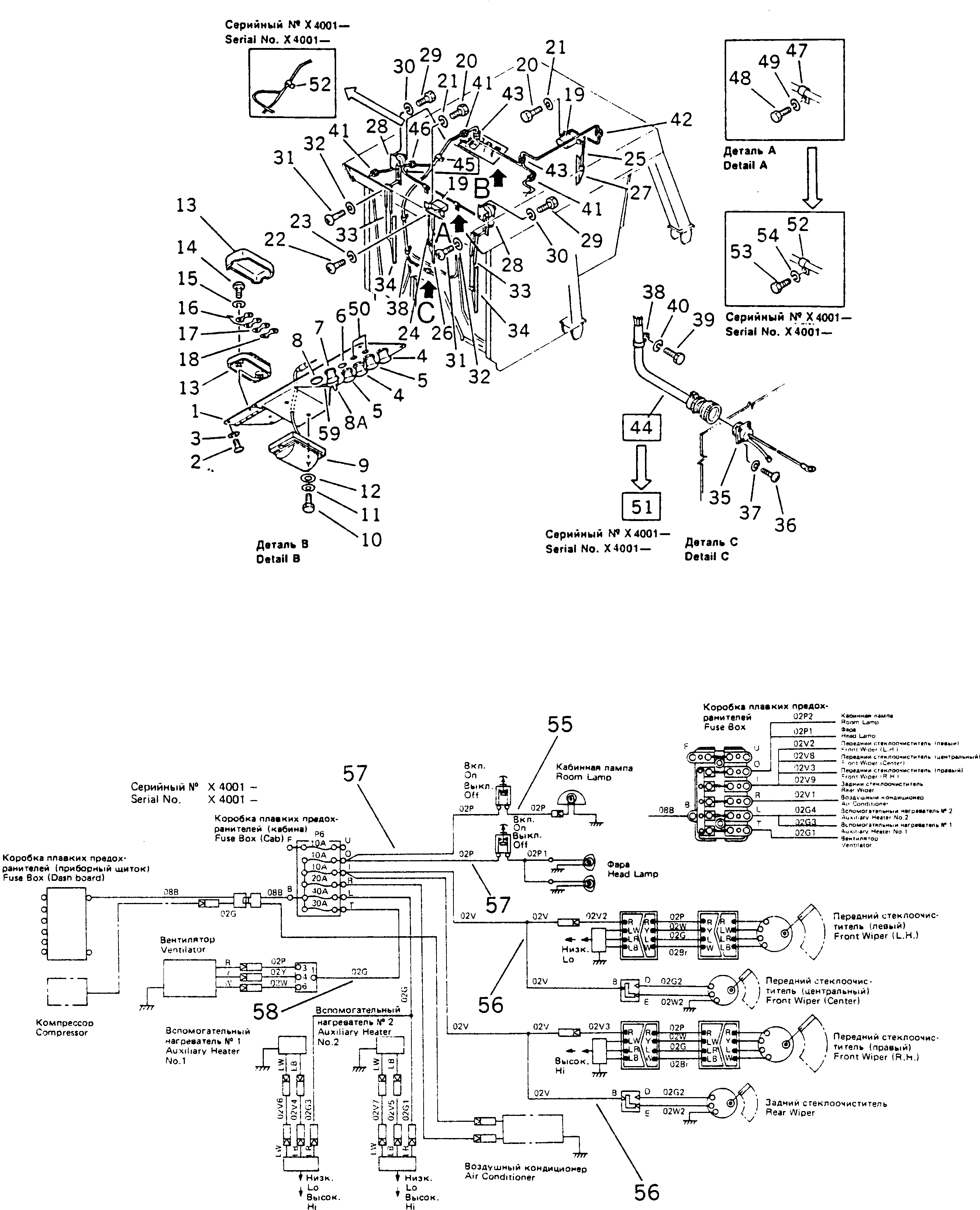
Запчасти Komatsu D355A-3X ЭЛЕКТРОПРОВОДКА В КАБИНЕ(№-9) ОПЦИОННЫЕ КОМПОНЕНТЫ

Схема запчастей Komatsu D355A-3X - ЭЛЕКТРОПРОВОДКА В КАБИНЕ(№-9) ОПЦИОННЫЕ КОМПОНЕНТЫ
FIT
1:1
100%

Артикул

Название

Примечание

Количество

|1

195-979-0041

ROPS CAB ASS'Y

SN: 4816-UP

1шт.

|1

195-979-0040

ROPS CAB ASS'Y

SN: 3633-4815

1шт.

|$$3

THESE ASSEMBLIES CONSIST OF ALL PARTS SHOWN IN FIGS.801C¤ 802C¤ 804C¤ AND 805C.

-1шт.

1

195-979-3361

PLATE

SN: 3301-UP

1шт.

2

01010-80616

BOLT

SN: 3301-UP

9шт.

3

01602-20619

WASHER,SPRING

SN: 3301-UP

9шт.

4

195-979-3140

SWITCH

SN: 3301-UP

2шт.

5

08183-00000

SWITCH

SN: 3301-UP

2шт.

6

08061-30010

SWITCH,HEAD LAMP

SN: 3633-UP

1шт.

7

08060-00040

SWITCH,ROOM LAMP

SN: 2529-UP

1шт.

8

195-979-3270

CAP

SN: 3301-UP

2шт.

8A

195-979-3290

SWITCH

SN: 4001-UP

1шт.

9

08141-12400

LAMP,ROOM

SN: 13684-UP

1шт.

|9

08142-32400

LAMP ASS'Y,ROOM

SN: 3301-13683

1шт.

|9

08116-02410

BULB¤ 10W

SN: 13684-UP

1шт.

|9

08110-12410

BULB¤ 12W

SN: 3633-13683

1шт.

10

01220-40412

SCREW

SN: 13684-UP

2шт.

|10

01010-80616

BOLT

SN: 3301-13683

2шт.

11

01601-20410

WASHER

SN: 13684-UP

2шт.

|11

01602-00619

WASHER,SPRING

SN: 3301-13683

2шт.

12

01643-30623

WASHER,SPRING

SN: 3301-13683

2шт.

13

175-06-35431

BOX,FUSE

SN: 9001-UP

1шт.

|13

175-06-35430

BOX,FUSE

SN: 2529-9000

1шт.

14

01220-40616

SCREW

SN: 2529-UP

2шт.

15

01611-06063

WASHER

SN: 2529-UP

2шт.

16

175-06-35420

FUSE¤ 10A

SN: 3301-UP

4шт.

17

175-06-35410

FUSE¤ 20A

SN: 2529-UP

1шт.

18

175-06-35390

FUSE¤ 30A

SN: 2529-UP

1шт.

19

195-979-3130

WIPER MOTOR ASS'Y

SN: 2529-UP

2шт.

20

01010-80614

BOLT

SN: 2529-UP

12шт.

21

01602-20619

WASHER,SPRING

SN: 2529-UP

12шт.

22

01220-40416

SCREW

SN: 2529-UP

2шт.

23

01601-20410

WASHER,SPRING

SN: 2529-UP

2шт.

24

195-979-3160

ARM

SN: 3301-UP

1шт.

25

08184-01500

ARM

SN: 3301-UP

1шт.

26

08185-00350

BLADE

SN: 3301-UP

1шт.

27

08185-00400

BLADE

SN: 3301-UP

1шт.

28

195-979-3120

WIPER MOTOR ASS'Y

SN: 3301-UP

2шт.

29

01010-80614

BOLT

SN: 3301-UP

8шт.

30

01602-20619

WASHER,SPRING

SN: 3301-UP

8шт.

31

01220-40416

SCREW

SN: 3301-UP

2шт.

32

01602-20410

WASHER,SPRING

SN: 3301-UP

2шт.

33

195-979-3170

ARM,WIPER

SN: 3301-UP

2шт.

34

195-979-3150

BLADE,WIPER

SN: 3301-UP

2шт.

35

195-979-3221

WIRE ASS'Y

SN: 3301-UP

1шт.

36

01220-40312

SCREW

SN: 3301-UP

4шт.

37

01602-20307

WASHER,SPRING

SN: 3301-UP

4шт.

38

08036-30810

CLIP

SN: 3301-UP

2шт.

39

01010-81020

BOLT

SN: 3301-UP

2шт.

40

01602-21030

WASHER,SPRING

SN: 3301-UP

2шт.

41

08037-01008

GROMMET

SN: 4001-UP

3шт.

|41

08037-01008

GROMMET

SN: 3301-4000

4шт.

42

08037-01610

GROMMET

SN: 4001-UP

2шт.

|42

08037-01610

GROMMET

SN: 3301-4000

1шт.

43

08037-03614

GROMMET

SN: 4001-UP

3шт.

|43

08037-03614

GROMMET

SN: 3301-4000

2шт.

44

195-979-0520

SERVICE KIT

SN: 3301-4000

1шт.

|44

175-911-1861

WIRE

SN: 3301-4000

1шт.

|44

175-911-1870

WIRE

SN: 3301-4000

1шт.

|44

175-911-1881

WIRE

SN: 3301-4000

1шт.

|44

175-911-1920

WIRE

SN: 3301-4000

1шт.

|44

175-911-1930

WIRE

SN: 3301-4000

1шт.

|44

175-911-1940

WIRE

SN: 3301-4000

1шт.

|44

195-979-3250

PLUG

SN: 3301-4000

1шт.

|44

08022-14001

CONNECTOR

SN: 3301-4000

18шт.

|44

08026-01920

TAPE

SN: 3301-4000

2шт.

|44

08027-01410

CONNECTOR

SN: 3301-4000

2шт.

|44

08027-02620

CONNECTOR

SN: 3301-4000

2шт.

|44

08031-20204

TERMINAL

SN: 3301-4000

24шт.

|44

08031-20805

TERMINAL

SN: 3301-4000

1шт.

|44

08034-00519

BAND

SN: 3301-4000

15шт.

45

08036-21414

CLIP

SN: 3633-4000

1шт.

46

08037-02152

GROMMET

SN: 3633-4000

1шт.

47

08036-21414

CLIP

SN: 3633-4000

2шт.

48

01010-81016

BOLT

SN: 3633-4000

2шт.

49

01602-21030

WASHER,SPRING

SN: 3633-4000

2шт.

51

175-979-2915

WIRE ASS'Y

SN: 4001-UP

1шт.

52

08036-21414

CLIP

SN: 4001-UP

3шт.

53

01010-81016

BOLT

SN: 4001-UP

2шт.

54

01602-01030

WASHER,SPRING

SN: 4001-UP

2шт.

55

154-979-2921

CABLE

SN: 4001-UP

1шт.

56

154-979-2931

CABLE

SN: 4001-UP

2шт.

57

154-979-2941

CABLE

SN: 4001-UP

2шт.

58

154-979-2951

CABLE

SN: 4001-UP

1шт.

59

195-911-4591

PLATE,VENTILATOR

SN: 9001-UP

1шт.

Выбрано товаров: 0