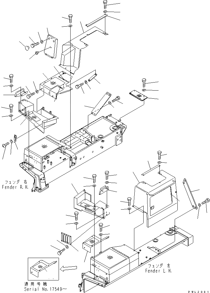
Запчасти Komatsu D375A-3A КРЫЛО (ЕС¤DYNAMIC)(№78-) ЧАСТИ КОРПУСА

Схема запчастей Komatsu D375A-3A - КРЫЛО (ЕС¤DYNAMIC)(№78-) ЧАСТИ КОРПУСА
1
2
3
4
5
6
7
8
9
10
11
12
13
14
15
16
17
18
19
19
20
21
22
23
24
25
26
27
28
29
30
31
32
33
34
35
36
37
37A
38
38
39
39
40
41
42
43
44
45
46
47
48
49
50
51
52
53
54
55
FIT
1:1
100%

Артикул

Название

Примечание

Количество

1

195-54-67131

COVER,L.H.

SN: 17518-UP

1шт.

2

198-54-47250

HANDLE

SN: 17518-UP

1шт.

3

01010-81230

BOLT

SN: 17518-UP

4шт.

4

01643-31232

WASHER

SN: 17518-UP

4шт.

5

01010-81225

BOLT

SN: 17518-UP

4шт.

6

175-54-34170

WASHER

SN: 17637-UP

4шт.

6

01643-31232

WASHER

SN: 17518-17636

4шт.

7

195-54-53180

COVER

SN: 17518-UP

2шт.

8

01010-81225

BOLT

SN: 17518-UP

8шт.

9

01643-31232

WASHER

SN: 17518-UP

8шт.

10

195-54-67141

COVER,R.H.

SN: 17518-UP

1шт.

11

195-57-11530

CATCH CLIP

SN: 17518-UP

1шт.

12

01220-40512

SCREW

SN: 17518-UP

3шт.

13

01601-20513

WASHER

SN: 17518-UP

3шт.

14

198-54-47260

HANDLE

SN: 17518-UP

1шт.

15

01010-81230

BOLT

SN: 17518-UP

4шт.

16

01643-31232

WASHER

SN: 17518-UP

4шт.

17

01010-81225

BOLT

SN: 17518-UP

4шт.

18

175-54-34170

WASHER

SN: 17637-UP

4шт.

18

01643-31232

WASHER

SN: 17518-17636

4шт.

19

195-54-67173

COVER,L.H.

SN: 17549-UP

1шт.

19

195-54-67172

COVER,L.H.

SN: 17518-17548

1шт.

20

01010-81225

BOLT

SN: 17518-UP

3шт.

21

01643-31232

WASHER

SN: 17518-UP

3шт.

22

195-54-67182

COVER,R.H.

SN: 17518-UP

1шт.

23

144-851-1960

HINGE (WELDED)

SN: 17518-UP

1шт.

24

195-54-23820

HINGE (WELDED)

SN: 17518-UP

1шт.

25

01010-81225

BOLT

SN: 17518-UP

5шт.

26

01643-31232

WASHER

SN: 17518-UP

5шт.

27

195-54-67281

BRACKET

SN: 17518-UP

1шт.

28

01010-81230

BOLT

SN: 17518-UP

2шт.

29

01643-31232

WASHER

SN: 17518-UP

2шт.

30

195-54-67212

COVER,L.H.

SN: 17518-UP

1шт.

31

09457-00385

HINGE (WELDED)

SN: 17518-UP

1шт.

32

01010-81225

BOLT

SN: 17518-UP

8шт.

33

01643-31232

WASHER

SN: 17518-UP

8шт.

34

195-54-67222

COVER,R.H.

SN: 17518-UP

1шт.

35

01010-81225

BOLT

SN: 17518-UP

6шт.

36

01643-31232

WASHER

SN: 17518-UP

6шт.

37

195-54-67530

COVER,L.H.

SN: 17518-UP

1шт.

37A

195-54-67540

COVER,R.H.

SN: 17518-UP

1шт.

38

01010-81225

BOLT

SN: 17518-UP

4шт.

39

01643-31232

WASHER

SN: 17518-UP

4шт.

40

195-54-67341

COVER

SN: 17518-UP

1шт.

41

01010-81225

BOLT

SN: 17518-UP

4шт.

42

01643-31232

WASHER

SN: 17518-UP

4шт.

43

195-54-42981

CAP

SN: 17518-UP

2шт.

44

07049-01215

PLUG

SN: 17518-UP

4шт.

45

195-54-67241

PLATE,L.H.

SN: 17518-UP

1шт.

46

01010-62765

BOLT

SN: 17518-UP

4шт.

47

01643-32780

WASHER

SN: 17518-UP

4шт.

48

195-54-67250

PLATE,R.H.

SN: 17518-UP

1шт.

49

01010-62765

BOLT

SN: 17518-UP

4шт.

50

01643-32780

WASHER

SN: 17518-UP

4шт.

51

01010-81245

BOLT

SN: 17518-UP

2шт.

52

01643-31232

WASHER

SN: 17518-UP

2шт.

53

195-54-67471

STEP

SN: 17518-UP

1шт.

54

01010-81225

BOLT

SN: 17518-UP

4шт.

55

01643-31232

WASHER

SN: 17518-UP

4шт.

Выбрано товаров: 59