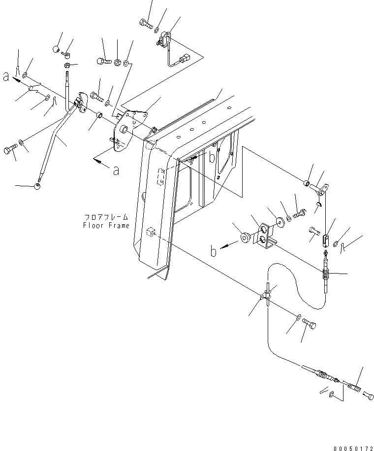
Запчасти Komatsu D375A-5 ОСНОВН. КОНСТРУКЦИЯ (КОНТРОЛЬ ХОДА) (ТОРМОЗ. РЫЧАГ) КАБИНА ОПЕРАТОРА И СИСТЕМА УПРАВЛЕНИЯ

Схема запчастей Komatsu D375A-5 - ОСНОВН. КОНСТРУКЦИЯ (КОНТРОЛЬ ХОДА) (ТОРМОЗ. РЫЧАГ) КАБИНА ОПЕРАТОРА И СИСТЕМА УПРАВЛЕНИЯ
1
2
3
4
5
5
6
7
7
8
9
10
11
12
12
13
13
14
15
16
17
18
19
20
21
22
23
24
25
26
27
28
29
30
31
32
33
34
35
36
FIT
1:1
100%

Артикул

Название

Примечание

Количество

1

17M-43-42570

BRACKET

SN: 55001-UP

1шт.

2

17M-43-42511

LEVER

SN: 55001-UP

1шт.

3

17M-43-41530

LEVER

SN: 55001-UP

1шт.

4

17M-09-41110

NUT

SN: 55001-UP

1шт.

5

09304-10835

KNOB

SN: 55001-UP

2шт.

6

17M-43-42590

SHAFT

SN: 55001-UP

1шт.

7

06123-01614

BEARING

SN: 55001-UP

2шт.

8

04010-00519

KEY

SN: 55001-UP

1шт.

9

01010-80830

BOLT

SN: 55001-UP

1шт.

10

01643-30823

WASHER

SN: 55001-UP

1шт.

11

09463-00002

SPRING

SN: 55001-UP

1шт.

12

01640-20610

WASHER

SN: 55001-UP

2шт.

13

04050-11612

PIN

SN: 55001-UP

2шт.

14

01010-80620

BOLT

SN: 55001-UP

1шт.

15

01580-10605

NUT

SN: 55001-UP

1шт.

16

01643-30623

WASHER

SN: 55001-UP

1шт.

17

01010-81025

BOLT

SN: 55001-UP

3шт.

18

01643-31032

WASHER

SN: 55001-UP

3шт.

19

11Y-06-22150

SWITCH

SN: 55001-UP

1шт.

20

01010-81030

BOLT

SN: 55001-UP

2шт.

21

01643-31032

WASHER

SN: 55001-UP

2шт.

22

04211-20844

YOKE

SN: 55001-UP

1шт.

23

154-43-14470

YOKE

SN: 55001-UP

1шт.

24

04205-10825

PIN

SN: 55001-UP

1шт.

25

01640-20816

WASHER

SN: 55001-UP

1шт.

26

04050-12015

PIN

SN: 55001-UP

1шт.

27

04434-51712

CLIP

SN: 55001-UP

1шт.

28

07095-20211

CUSHION

SN: 55001-UP

1шт.

29

01010-81220

BOLT

SN: 55001-UP

1шт.

30

01643-31232

WASHER

SN: 55001-UP

1шт.

31

22D-43-14430

CABLE

SN: 55001-UP

1шт.

32

17M-43-42150

BRACKET

SN: 55001-UP

1шт.

33

195-03-41380

CUSHION

SN: 55001-UP

2шт.

34

178-60-12250

COLLAR

SN: 55001-UP

2шт.

35

01010-81045

BOLT

SN: 55001-UP

2шт.

36

01643-31032

WASHER

SN: 55001-UP

2шт.

Выбрано товаров: 36