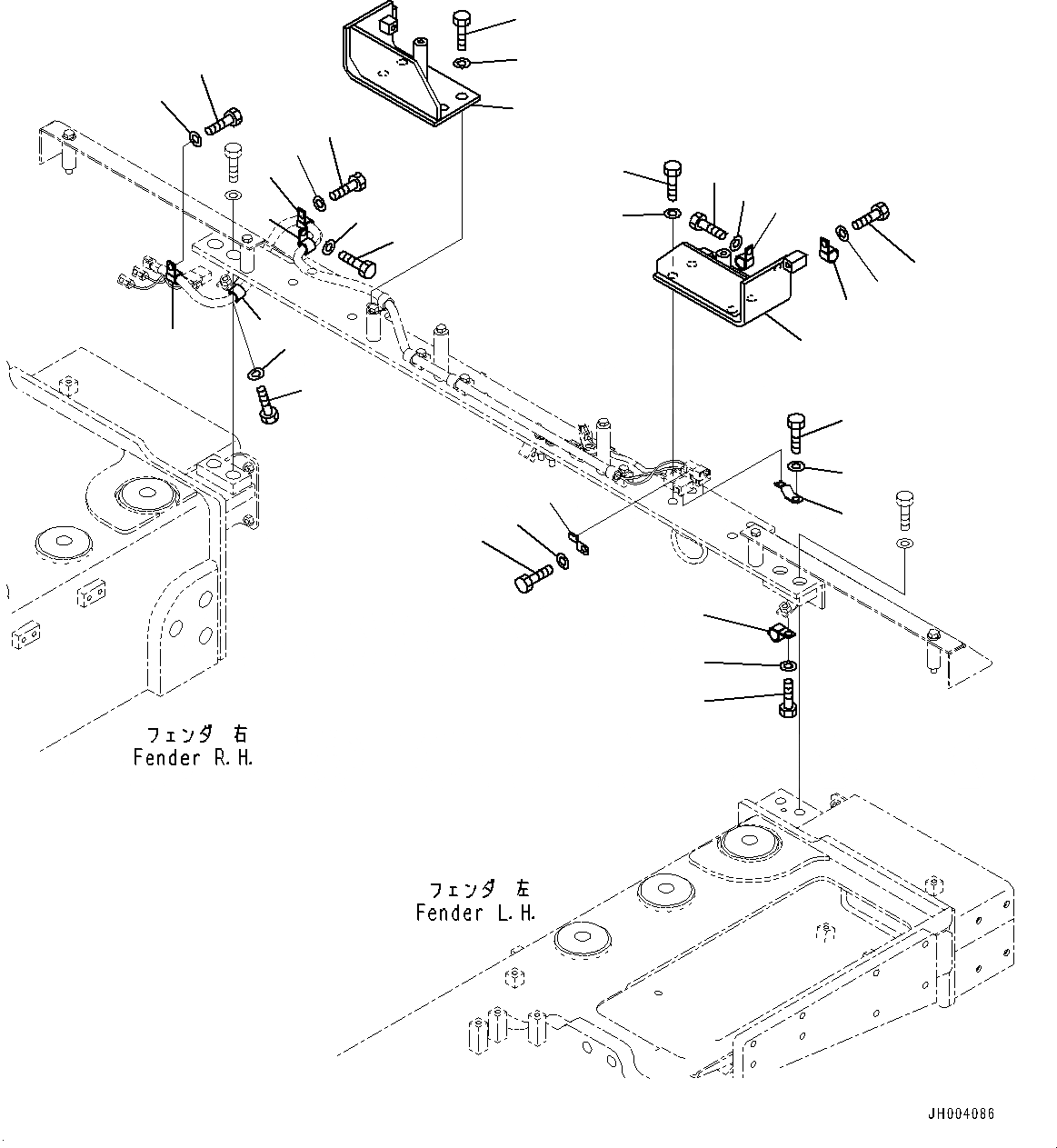
Запчасти Komatsu D375A-6 ЗАДН. КРЫШКА, ПЛАТФОРМА КОМПОНЕНТЫ (№7-) ЗАДН. КРЫШКА, ПЛАТФОРМА

Схема запчастей Komatsu D375A-6 - ЗАДН. КРЫШКА, ПЛАТФОРМА КОМПОНЕНТЫ (№7-) ЗАДН. КРЫШКА, ПЛАТФОРМА
1
2
3
4
5
6
7
8
9
10
11
12
13
15
16
17
18
1
2
3
5
6
7
14
8
9
4
7
9
8
3
2
1
FIT
1:1
100%

Артикул

Название

Примечание

Количество

1

04434-51912

Clip

SN: 60007-@

3шт.

2

01010-81220

Bolt

SN: 60007-@

3шт.

3

01643-31232

Washer

SN: 60007-@

3шт.

4

08193-20012

Clip

SN: 60001-@

3шт.

5

01010-81220

Bolt

SN: 60001-@

3шт.

6

01643-31232

Washer

SN: 60001-@

3шт.

7

04434-52312

Clip

SN: 60007-60013

3шт.

8

01010-81220

Bolt

SN: 60007-60013

3шт.

9

01643-31232

Washer

SN: 60007-@

3шт.

10

04434-51912

Clip

SN: 60001-@

1шт.

11

01010-81220

Bolt

SN: 60001-@

1шт.

12

01643-31232

Washer

SN: 60001-@

1шт.

13

195-54-89370

Bracket

SN: 60001-@

1шт.

14

01010-81645

Bolt

SN: 60001-@

4шт.

15

21T-54-16150

Washer

SN: 60001-@

4шт.

16

195-54-89380

Bracket

SN: 60001-@

1шт.

17

01010-81645

Bolt

SN: 60001-@

4шт.

18

21T-54-16150

Washer

SN: 60001-@

4шт.

Выбрано товаров: 18