Запчасти Komatsu D37EX-21A-M ЗАДН. ЧАСТИ КОРПУСА (КРЫЛО) ЧАСТИ КОРПУСА

Схема запчастей Komatsu D37EX-21A-M - ЗАДН. ЧАСТИ КОРПУСА (КРЫЛО) ЧАСТИ КОРПУСА
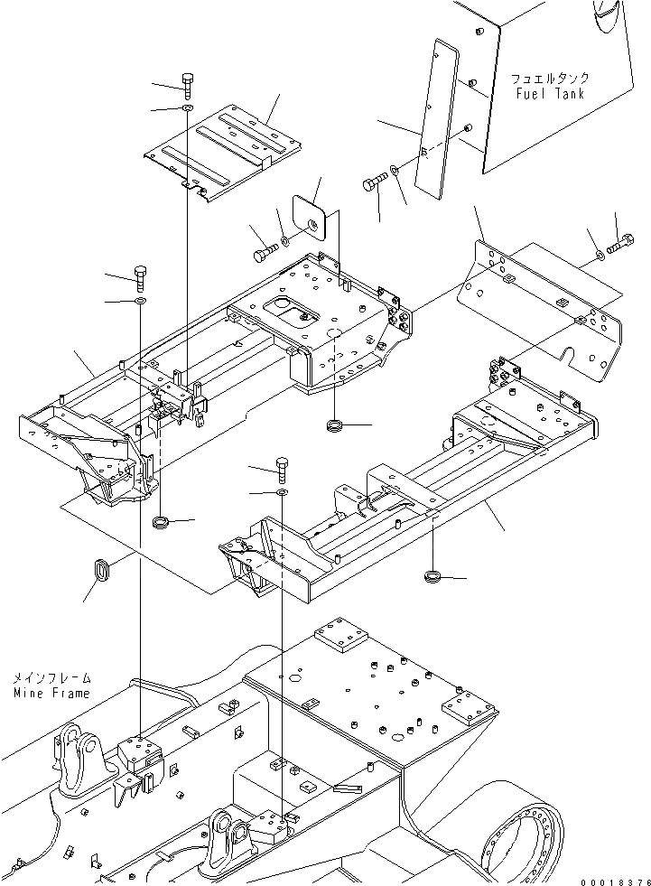
1
2
3
4
5
6
7
8
9
10
11
12
13
14
15
16
17
18
19
20
21
22
FIT
1:1
100%

Артикул

Название

Примечание

Количество

1

11Y-54-23111

FENDER,L.H.

SN: 5501-UP

1шт.

2

01010-81640

BOLT

SN: 5501-UP

12шт.

3

01643-31645

WASHER

SN: 5501-UP

12шт.

4

09415-05016

CAP

SN: 5501-UP

4шт.

5

11Y-54-23121

FENDER,R.H.

SN: 5501-UP

1шт.

6

01010-81640

BOLT

SN: 5501-UP

12шт.

7

01643-31645

WASHER

SN: 5501-UP

12шт.

8

09415-05016

CAP

SN: 5501-UP

4шт.

9

09415-02512

CAP

SN: 5501-UP

2шт.

10

11Y-54-13150

COVER

SN: 5501-UP

1шт.

11

01010-81225

BOLT

SN: 5501-UP

1шт.

12

01643-31232

WASHER

SN: 5501-UP

1шт.

13

11Y-54-13612

COVER

SN: 5501-UP

1шт.

14

01010-82050

BOLT

SN: 5501-UP

12шт.

15

01643-32060

WASHER

SN: 5501-UP

12шт.

16

21X-62-32740

GROMMET

SN: 5501-UP

2шт.

17

11Y-54-23730

BRACKET

SN: 5501-UP

1шт.

18

01010-81225

BOLT

SN: 5501-UP

4шт.

19

01643-31232

WASHER

SN: 5501-UP

4шт.

20

11Y-54-23720

COVER

SN: 5501-UP

1шт.

21

01010-81220

BOLT

SN: 5501-UP

3шт.

22

01643-31232

WASHER

SN: 5501-UP

3шт.

Выбрано товаров: 22