Запчасти Komatsu D37EX-21A РАМА В СБОРЕ КАБИНА ОПЕРАТОРА И СИСТЕМА УПРАВЛЕНИЯ

Схема запчастей Komatsu D37EX-21A - РАМА В СБОРЕ КАБИНА ОПЕРАТОРА И СИСТЕМА УПРАВЛЕНИЯ
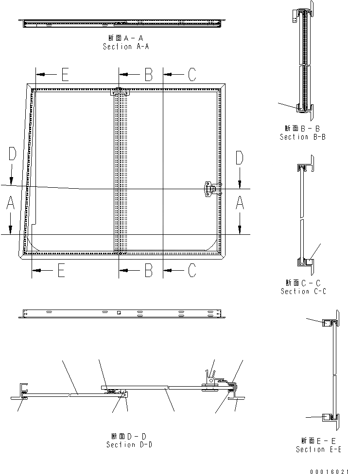
1
2
3
4
5
5
6
7
8
9
10
10
10
11
FIT
1:1
100%

Артикул

Название

Примечание

Количество

|$1

11Y-979-1302

SASH ASS'Y,L.H.

SN: 5501-UP

1шт.

|$2

11Y-979-1402

SASH ASS'Y,R.H.

SN: 5501-UP

1шт.

1

BJBK22-717-1

GLASS,REAR

SN: 5501-UP

1шт.

2

BJBK22-717-2

GLASS,FRONT

SN: 5501-UP

1шт.

3

BJBK21-1468

BRACKET

SN: 5501-UP

1шт.

4

BJBK22-717A-3

FRAME

SN: 5501-UP

1шт.

5

BJBK21-136

SEAL

SN: 5501-UP

2шт.

6

BJBK-8064

SEAL

SN: 5501-UP

1шт.

7

BJBK21-1228

SEAL

SN: 5501-UP

1шт.

8

BJBK21-199-1

SEAL

SN: 5501-UP

1шт.

9

BJBK8033-81

LOCK ASS'Y

SN: 5501-UP

1шт.

10

BJBK21-126

STOPPER

SN: 5501-UP

3шт.

11

BJBK21-220

SEAL

SN: 5501-UP

1шт.

Выбрано товаров: 13