Запчасти Komatsu D37EX-22 СИСТЕМА ROPS, ОСНОВН. КОНСТРУКЦИЯ ВНУТР. ПОКРЫТИЕ (№-) СИСТЕМА ROPS, С МАСТЕР КЛЮЧ, ДЛЯ MACHINE С НАВЕСОМ ОБОГРЕВАТЕЛЬ., ДЛЯ MACHINE С KOMTRAX

Схема запчастей Komatsu D37EX-22 - СИСТЕМА ROPS, ОСНОВН. КОНСТРУКЦИЯ ВНУТР. ПОКРЫТИЕ (№-) СИСТЕМА ROPS, С МАСТЕР КЛЮЧ, ДЛЯ MACHINE С НАВЕСОМ ОБОГРЕВАТЕЛЬ., ДЛЯ MACHINE С KOMTRAX
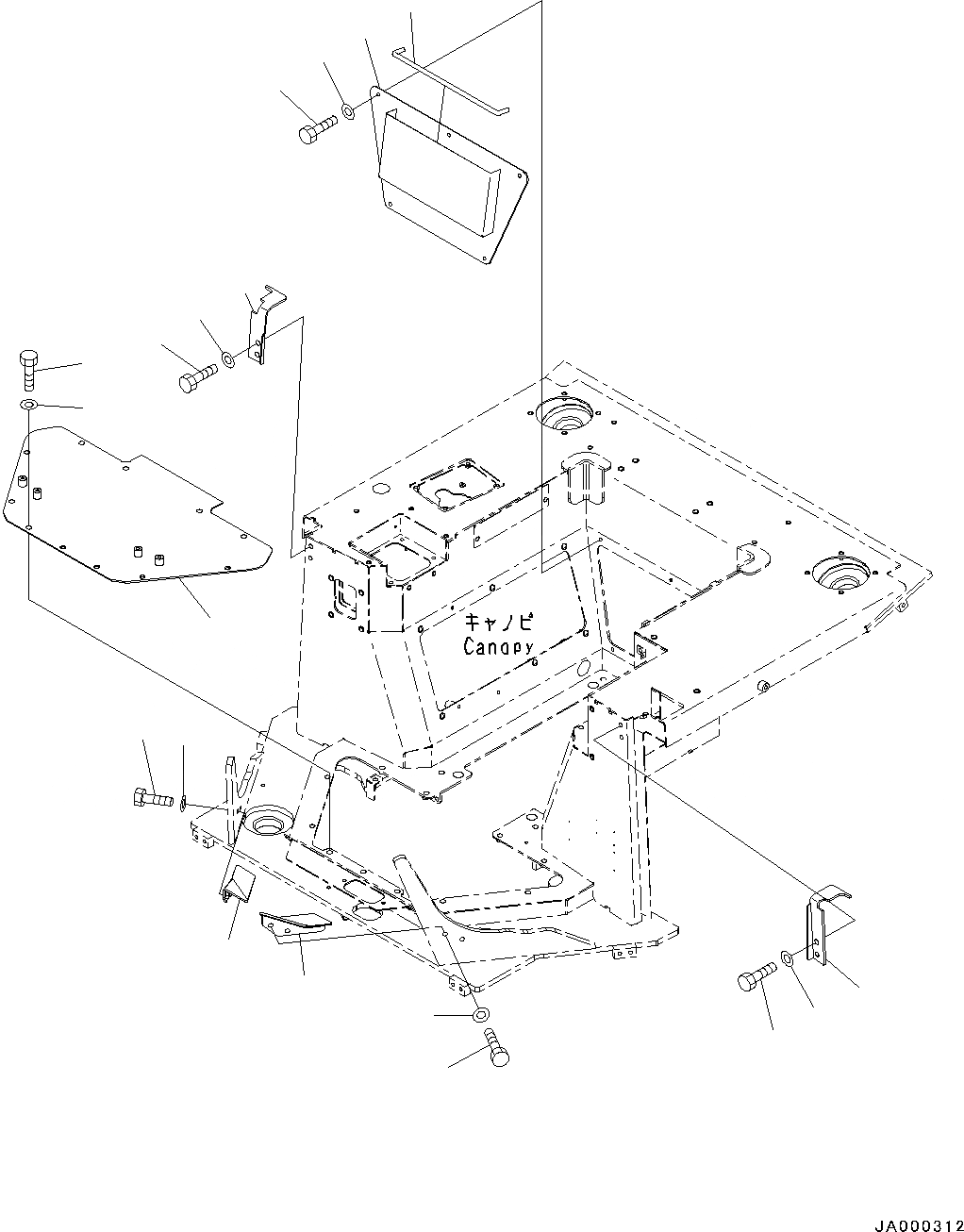
1
2
3
4
5
6
7
8
9
10
11
12
13
14
15
10
11
14
15
FIT
1:1
100%

Артикул

Название

Примечание

Количество

1

11Y-Z78-2911

Cover

SN: 60001-UP

1шт.

2

01010-81230

Bolt

SN: 60001-UP

11шт.

3

01643-31232

Washer

SN: 60001-UP

11шт.

4

11Y-Z78-2932

Cover

SN: 60001-UP

1шт.

5

01010-D0825

Bolt

SN: 60001-UP

5шт.

6

01643-70823

Washer

SN: 60001-UP

5шт.

7

12Y-978-2990

Trim

SN: 60001-UP

1шт.

8

11Y-Z78-1311

Cover

SN: 60001-UP

1шт.

9

11Y-Z78-1321

Cover

SN: 60001-UP

1шт.

10

01010-D1025

Bolt

SN: 60001-UP

4шт.

11

01643-71032

Washer

SN: 60001-UP

4шт.

12

11Y-Z78-1350

Cover

SN: 60001-UP

1шт.

13

11Y-Z78-1360

Cover

SN: 60001-UP

1шт.

14

01010-D1035

Bolt

SN: 60001-UP

4шт.

15

01643-71032

Washer

SN: 60001-UP

4шт.

Выбрано товаров: 15