Запчасти Komatsu D37PX-21 СИСТЕМА ROPS КАБИНА ОПЕРАТОРА И СИСТЕМА УПРАВЛЕНИЯ

Схема запчастей Komatsu D37PX-21 - СИСТЕМА ROPS КАБИНА ОПЕРАТОРА И СИСТЕМА УПРАВЛЕНИЯ
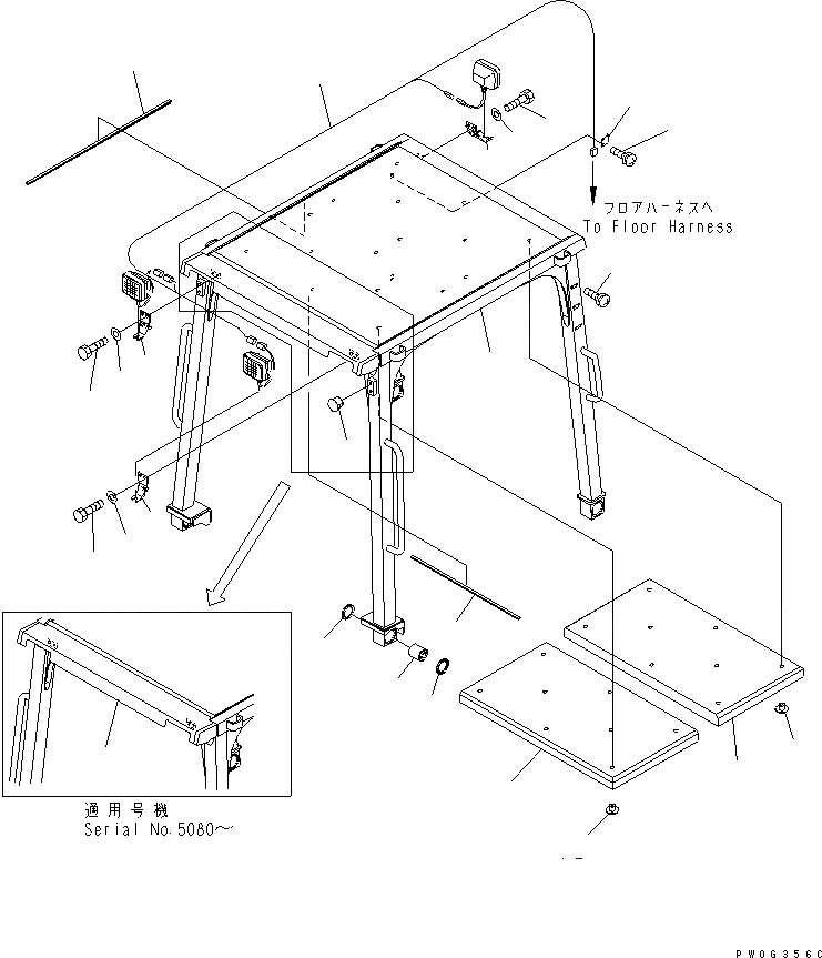
1
1
2
3
3
4
5
6
7
7
7
8
8
8
9
10
11
11
12
12
13
14
15
16
17
FIT
1:1
100%

Артикул

Название

Примечание

Количество

1

11Y-978-1630

GUARD ASS'Y

SN: 5080-UP

1шт.

|1

11Y-978-1113

GUARD ASS'Y

SN: 5001-5079

1шт.

2

11Y-978-1212

RUBBER

SN: 5001-UP

4шт.

3

11Y-978-1222

RUBBER

SN: 5001-UP

8шт.

4

11Y-978-1610

BRACKET,L.H.

SN: 5001-UP

1шт.

5

11Y-978-1620

BRACKET,R.H.

SN: 5001-UP

1шт.

6

11Y-978-1311

PLATE

SN: 5001-UP

1шт.

7

01010-81225

BOLT

SN: 5001-UP

6шт.

8

01643-31232

WASHER

SN: 5001-UP

6шт.

9

11Y-978-1320

PLUG

SN: 5001-5079

4шт.

10

01023-20612

SCREW

SN: 5001-UP

6шт.

11

11Y-978-1252

ROOF LINING

SN: 5001-UP

2шт.

12

14X-978-1660

BUTTON

SN: 5001-UP

16шт.

13

11Y-978-1261

DUCT

SN: 5001-UP

2шт.

14

11Y-978-1290

DUCT

SN: 5001-UP

1шт.

15

11Y-978-1280

PLATE

SN: 5001-UP

2шт.

16

01023-20610

SCREW

SN: 5001-UP

4шт.

17

11Y-06-11152

WIRING HARNESS

SN: 5001-UP

1шт.

Выбрано товаров: 18