Запчасти Komatsu D37PX-22 КАБИНА ROPS, СТУПЕНИS И ВЕЩЕВОЙ ЯЩИК ФИКС. РЕМЕНЬS (№-) КАБИНА ROPS, ДЛЯ СТРАН ЕС REGULATIONS FLEXIBILITY SCHEME, ЕС БЕЗОПАСН. REGULATION, PROVISION ДЛЯ РАДИО

Схема запчастей Komatsu D37PX-22 - КАБИНА ROPS, СТУПЕНИS И ВЕЩЕВОЙ ЯЩИК ФИКС. РЕМЕНЬS (№-) КАБИНА ROPS, ДЛЯ СТРАН ЕС REGULATIONS FLEXIBILITY SCHEME, ЕС БЕЗОПАСН. REGULATION, PROVISION ДЛЯ РАДИО
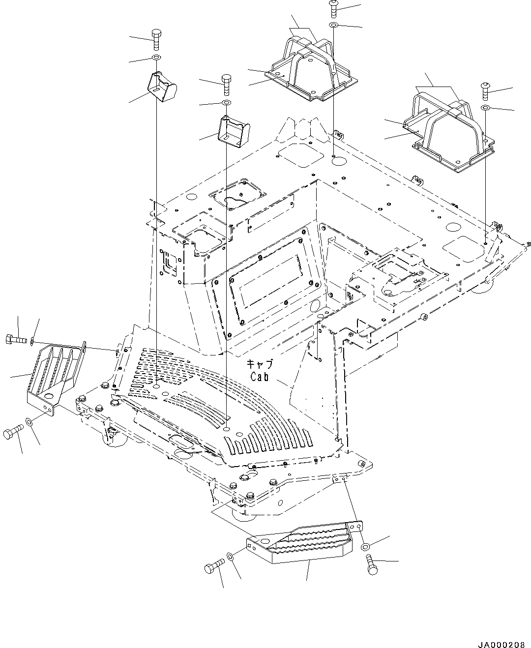
9
10
9
15
11
14
14
13
13
12
8
7
6
5
15
10
1
3
4
3
3
3
4
4
4
2
FIT
1:1
100%

Артикул

Название

Примечание

Количество

1

12Y-978-1912

Bracket

SN: 60001-UP

1шт.

2

12Y-978-1922

Bracket

SN: 60001-UP

1шт.

3

01010-D1225

Bolt

SN: 60001-UP

8шт.

4

01643-71232

Washer

SN: 60001-UP

8шт.

5

11Y-Z78-3350

Bracket

SN: 60001-UP

1шт.

6

12Y-978-2370

Sheet

SN: 60001-UP

1шт.

7

12Y-978-2360

Bracket

SN: 60001-UP

1шт.

8

12Y-978-2380

Sheet

SN: 60001-UP

1шт.

9

01245-00620

Screw

SN: 60001-UP

8шт.

10

01643-70623

Washer

SN: 60001-UP

8шт.

11

11Y-43-32410

Bracket

SN: 60001-UP

1шт.

12

11Y-43-32420

Bracket

SN: 60001-UP

1шт.

13

01010-D1020

Bolt

SN: 60001-UP

4шт.

14

01643-71032

Washer

SN: 60001-UP

4шт.

15

423-54-42790

Band

SN: 60001-UP

4шт.

Выбрано товаров: 15