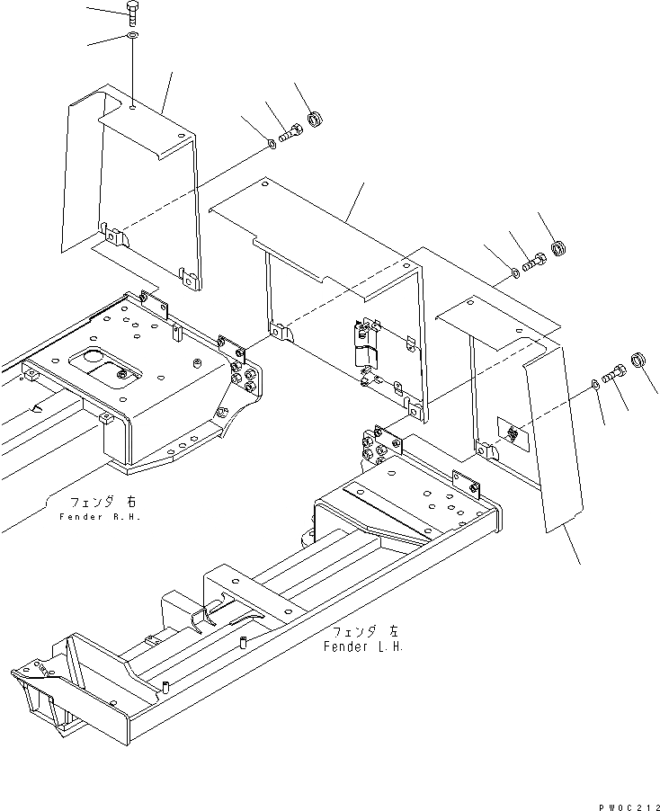
Запчасти Komatsu D39EX-21 ЗАДН. КРЫШКА ЧАСТИ КОРПУСА

Схема запчастей Komatsu D39EX-21 - ЗАДН. КРЫШКА ЧАСТИ КОРПУСА
1
2
3
4
5
5
5
6
6
6
6
7
7
7
FIT
1:1
100%

Артикул

Название

Примечание

Количество

1

11Y-54-13463

COVER,L.H.

SN: 1156-UP

1шт.

1

11Y-54-13462

COVER,L.H.

SN: 1001-1155

1шт.

2

11Y-54-13473

COVER,R.H.

SN: 1156-UP

1шт.

2

11Y-54-13472

COVER,R.H.

SN: 1001-1155

1шт.

3

11Y-54-14720

COVER

SN: 1156-UP

1шт.

3

0

COVER

SN: 1001-1155

1шт.

4

01010-81220

BOLT

SN: 1001-UP

6шт.

5

01010-81230

BOLT

SN: 1001-UP

6шт.

6

01643-31232

WASHER

SN: 1001-UP

12шт.

7

11Y-54-13630

CAP

SN: 1001-UP

6шт.

Выбрано товаров: 10