Запчасти Komatsu D39EX-21 РАМА В СБОРЕ(№-88) КАБИНА ОПЕРАТОРА И СИСТЕМА УПРАВЛЕНИЯ

Схема запчастей Komatsu D39EX-21 - РАМА В СБОРЕ(№-88) КАБИНА ОПЕРАТОРА И СИСТЕМА УПРАВЛЕНИЯ
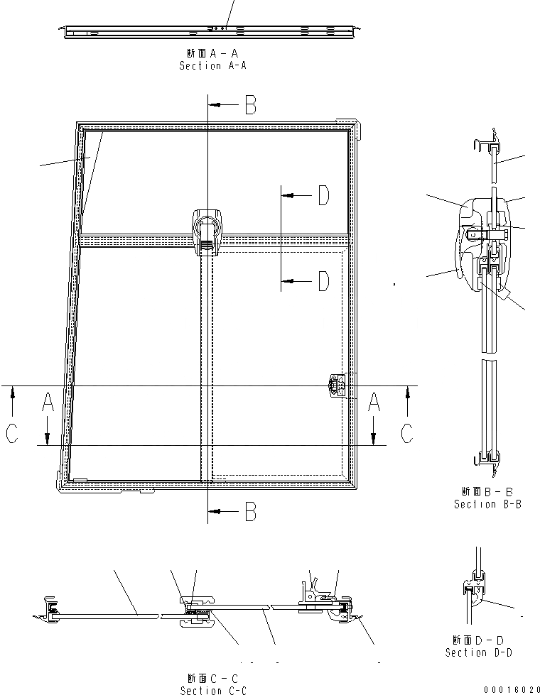
1
2
3
4
5
6
7
8
9
10
11
12
13
14
15
16
17
18
FIT
1:1
100%

Артикул

Название

Примечание

Количество

|1

11Y-979-1301

SASH ASS'Y,L.H.

SN: 1001-1188

1шт.

|1

11Y-979-1401

SASH ASS'Y,R.H.

SN: 1001-1188

1шт.

1

BJBK22-686-1

GLASS,UPPER

SN: 1001-1188

1шт.

2

BJBK22-686-2

GLASS,REAR

SN: 1001-1188

1шт.

3

BJBK22-686-3

GLASS,FRONT

SN: 1001-1188

1шт.

4

BJBK21-200

BRACKET

SN: 1001-1188

1шт.

5

BJBK21-3518

SEAL

SN: 1001-1188

1шт.

6

BJBK21-686-6

SEAL

SN: 1001-1188

1шт.

7

BJBK21-127

STOPPER

SN: 1001-1188

1шт.

|8

14X-911-0090

BRACKET ASS'Y

SN: 1001-1188

1шт.

8

14X-911-2620

BRACKET,OUTER

SN: 1001-1188

1шт.

9

14X-911-2630

BRACKET,INNER

SN: 1001-1188

1шт.

10

14X-911-2650

SEAL

SN: 1001-1188

2шт.

11

14X-911-2661

LEVER ASS'Y

SN: 1001-1188

1шт.

12

14X-911-2670

BLOCK

SN: 1001-1188

1шт.

13

14X-911-2640

CUSHION

SN: 1001-1188

2шт.

14

BJBK22-686-7

BRACKET

SN: 1001-1188

1шт.

15

BJBK21-188

SEAL

SN: 1001-1188

1шт.

16

BJBK21-361

SEAL

SN: 1001-1188

1шт.

17

20Y-54-13322

LOCK

SN: 1001-1188

1шт.

18

11Y-979-1390

DECAL,L.H.

SN: 1001-1188

1шт.

|18

11Y-979-1490

DEACL,R.H.

SN: 1001-1188

1шт.

Выбрано товаров: 22