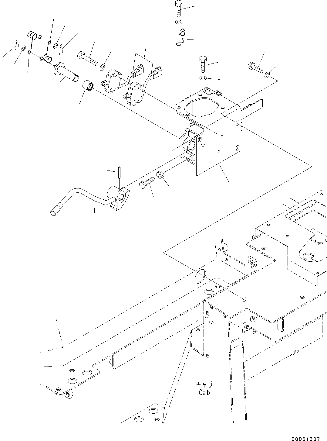
Запчасти Komatsu D39EX-22 КАБИНА ROPS, РЫЧАГ СТОЯНОЧНОГО ТОРМОЗА (№-) КАБИНА ROPS, С AM-FM STEREO РАДИО С CASSETTE ДЛЯ СТРАН ЕСКАНАТ И ASIA, С МАСТЕР КЛЮЧ

Схема запчастей Komatsu D39EX-22 - КАБИНА ROPS, РЫЧАГ СТОЯНОЧНОГО ТОРМОЗА (№-) КАБИНА ROPS, С AM-FM STEREO РАДИО С CASSETTE ДЛЯ СТРАН ЕСКАНАТ И ASIA, С МАСТЕР КЛЮЧ
2
10
16
18
19
18
19
12
13
14
11
8
5
4
17
11
10
9
15
1
3
6
7
FIT
1:1
100%

Артикул

Название

Примечание

Количество

|$0

12Y-43-12102

Lock Assembly

SN: 3001-UP

1шт.

1

12Y-43-12414

Bracket

SN: 3001-UP

1шт.

2

01016-50825

Bolt

SN: 3001-UP

2шт.

3

01580-10806

Nut

SN: 3001-UP

2шт.

4

06124-02020

Bearing

SN: 3001-UP

1шт.

5

12Y-43-12422

Lever

SN: 3001-UP

1шт.

6

12Y-43-12432

Lever

SN: 3001-UP

1шт.

7

14X-43-14520

Pin

SN: 3001-UP

1шт.

8

09463-00006

Spring

SN: 3001-UP

1шт.

9

09463-00002

Spring

SN: 3001-UP

1шт.

10

01641-20608

Washer

SN: 3001-UP

2шт.

11

04050-11612

Pin, Cotter

SN: 3001-UP

2шт.

12

12Y-43-12491

Hook

SN: 3001-UP

1шт.

13

01010-80820

Bolt

SN: 3001-UP

1шт.

14

01643-30823

Washer

SN: 3001-UP

1шт.

15

11Y-06-11470

Switch,Parking Brake Lever

SN: 3001-UP

2шт.

16

01010-81050

Bolt

SN: 3001-UP

2шт.

17

01643-31032

Washer

SN: 3001-UP

2шт.

18

01010-81020

Bolt

SN: 3001-UP

5шт.

19

01643-31032

Washer

SN: 3001-UP

5шт.

Выбрано товаров: 20